Budapest, XXII.kerület


 

Hivatkozási szám: 3219233

Ingatlan adatai

Irányár: 189 990 000 Ft
Típus: ház
Kategória: eladó
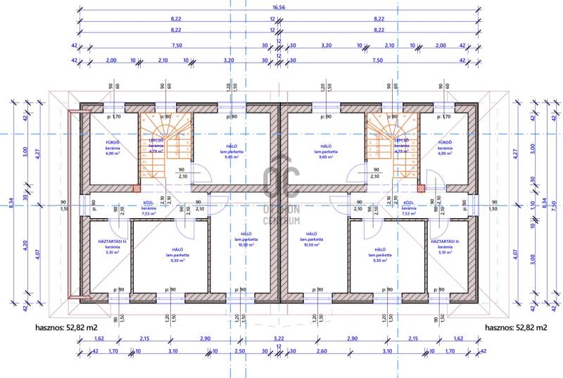
Alapterület: 108 m2
Fűtés: -
Állapota: új
Szobák száma: 5
Építés éve: 2026
Szintek száma: -

Részletes leírás

A XI. és a XXII. kerület határán Budafok- Rózsavölgy legkedveltebb részén, csendes, átmenőforgalomtól mentes, aszfaltozott utcában helyezkedik el.A széles utcafrontnak köszönhetően, teljesen szeparálva van a két ingatlan egymástól. Az épület tökéletesen lesz elhelyezve a telek közepén, egymásnak háttal, így a teraszok, a kertkapcsolat a két szélén helyezkedik el, ezáltal teljesen intim.A projekt kiemelkedő műszaki tartalommal rendelkezik:- 30 cm-es Porotherm tégla, 10 cm-es Porotherm válaszfalak- 15 cm-es Grafitos homlokzati hőszigetelés- 12 cm lépésálló szigetelés, 25 cm kőzetgyapot szigetelés a födémen- Háromrétegű nyílászárók, kívül színes, belül fehér színűekMindenhol padlófűtés lesz, a melegvízről a fűtésről hőszivattyús rendszer gondoskodik.A kulcsrakész vételár már tartalmazza:- Rejtett redőnytokok, elektromos redőnykiállásokat- Beltéri ajtókat 80.000 Ft/db, hideg- meleg burkolatokat 7000 Ft/m2 - Elektromos autó kiállást, napelem kiállást- A külső és a belső gránit párkányokatAz ikerházhoz telken belül lesz kialakítva gépkocsibeálló, az utcában ingyenes a parkolás.A villamos megálló 5 perc sétára található, mellyel egészen a Bécsi útig közlekedhetünk.Részletesebb információkkal kapcsolatban, keressen az elérhetőségeimen.A fejlesztő referenciái bármikor megtekinthetők.Abszolút Friss megbízás a piacon!Várható átadás 2027. február.

További adatok

Telekterület: 1 045 m2
Kert mérete: 1 045 m2
Erkély mérete: 10 m2
Felszereltség: -
Parkolás: -
Kilátás: -
Egyéb extrák:  
-

Hirdető adatai

Hirdető neve: Otthon Centrum
Kapcsolattartó: Plaschil Róbert
Hirdető telefonszáma: +36 70 469 3436
Honlap: -

Üzenetet küldhet a hirdetőnek:
Az Ön neve:
Az Ön e-mail címe:
Üzenet: