Pest megye, Mogyoród


 

Hivatkozási szám: 3219157

Ingatlan adatai

Irányár: 116 900 000 Ft
Típus: ház
Kategória: eladó
Alapterület: 78 m2
Fűtés: gáz (cirko)
Állapota: -
Szobák száma: 3
Építés éve: 1938
Szintek száma: -

Részletes leírás

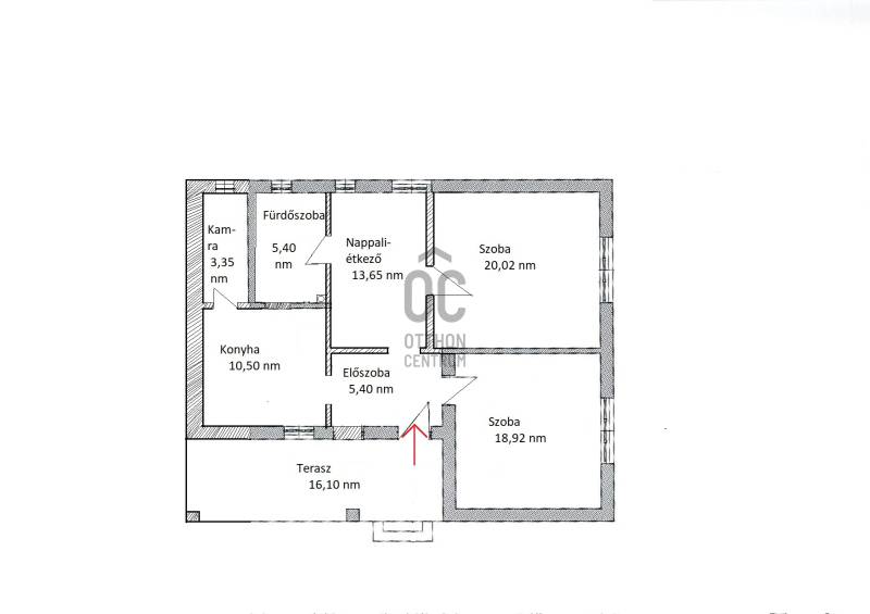
Mogyoródon csendes mellékutcában, családi házas kertvárosi környezetben kínálunk megvásárlására egy hatalmas, 1417 nm-es saroktelken álló földszintes kialakítású 3 szobás családi házat garázzsal, pincével, nyári konyhával, tárolókkal. A melléképületben egy kisebb lakás is kialakítható. A lakóépületet 2005-ben felújították, a tetőszerkezet megújult, a cserepeket lecserélték, új fűtésrendszer lett kiépítve, az elektromos hálózat, vízcsövek is cserélve lettek, konyha, fürdőszoba burkolatok, szaniterek, bútorzat is fel lett újítva. A lakás belső elosztása kiváló: a nagy méretű, fedett, kertre néző teraszról nyílik a bejárat, a tágas előszobában van hely a kabátok, cipők tárolására. A konyha-étkezőből nyílik egy kamra, a házban további két nagy méretű szoba, egy nappali, és egy nagy fürdőszoba került még kialakításra. A telekre még egy, kb 170 nm-es lakóház építhető. Saroktelek lévén másik utcáról megközelíthető az üres telek rész, így építkezés esetén utcáról is külön bejáratok alakíthatók ki a lakóházakhoz. A lakóház kisebb telekkel is eladó, ebben az esetben kb. 800 nm-es telek fog tartozni a házhoz. Így a hirdetési ár 84.9 M Ft.#kertesház #eladóház #csendes #nagytelek #agglomeráció #eladóingatlan

További adatok

Telekterület: 1 417 m2
Kert mérete: 1 417 m2
Erkély mérete: 16 m2
Felszereltség: -
Parkolás: -
Kilátás: -
Egyéb extrák:  
-

Hirdető adatai

Hirdető neve: Otthon Centrum
Kapcsolattartó: Sipos Zoltánné
Hirdető telefonszáma: +36 70 469 3031
Honlap: -

Üzenetet küldhet a hirdetőnek:
Az Ön neve:
Az Ön e-mail címe:
Üzenet: