Baranya megye, Pécs


 

Hivatkozási szám: 3219147

Ingatlan adatai

Irányár: 95 875 000 Ft
Típus: lakás (újépítésű)
Kategória: eladó
Alapterület: 77 m2
Fűtés: -
Állapota: új
Szobák száma: 2
Építés éve: 2026
Szintek száma: -

Részletes leírás

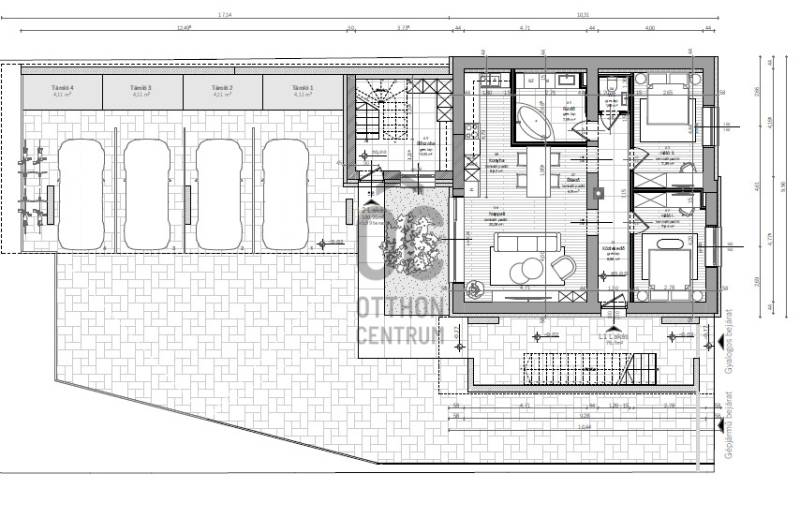
Pécs-Belváros peremén, csendes, családi házas övezetben, kiváló referencia munkáiról ismert, és nagy szakmai tapasztalattal rendelkező generálkivitelező által 2025. télen kezdődő beruházás keretében szigetelt, kettő épületből álló, háromszintes, összesen 4 db lakásból és 4 db gépkocsi beállókból álló, modern, téglaépítésű társasházban, exclusive kivitelezésű, korszerű felszereltséggel, valamint magas műszaki tartalommal bíró, kulcsrakész új építésű \"A\" besorolású lakások 2026. őszi átadással már leköthetők.Az ingatlanok fűtését lakásonként szerelt saját gázkazán biztosítja, illetve hűtését kültéri egységgel rendelkező klímák. Minden lakás padlófűtéses, melyek a nappaliban és a hálószobában külön szabályozhatók lesznek. A fürdőszobában ezen kívül elektromos fali radiátor biztosítja a meleget. Motoros redőnyökkel felszerelt 3 rétegű üvegezésű, világosszürke alumínium nyílászárók kerülnek beszerelésre. A 40 cm falazatra még 15 cm szigetelés kerül. A lakás különlegessége, hogy csendes hálószobákkal, nagy ablakokkal, kényelmes terekkel rendelkezik.Ezen ingatlan a földszinten található (a tervrajzon L1 számú lakásként jelölve), összesen 76,7 nm alapterületű lakótérrel rendelkezik. A lakótérben egy hosszú közlekedőből nyílnak a helyiségek: vendég WC, kényelmes konyha-étkező-nappali, 2 külön nyíló hálószoba, és egy sarokkádas fürdőszoba került kialakításra.A lakáshoz belső udvari fedett 10 nm gépkocsibeálló (nettó 6 mft) és 4,1 nm tároló (nettó 2,877 mft) is vásárolható. Minden gépkocsibeállóban elektromos autótöltő került kiépítésre.Mivel az ingatlant is magába foglaló társasház a város külföldi egyetemisták által is közkedvelt részén található, ezért fokozottan ajánljuk mindazon kedves érdeklődő figyelmébe, akik Pécsett kifejezetten befektetési célból kívánnak ingatlant vásárolni. A város jelenleg legnagyobb albérlet kínálatával rendelkező és a Pécsi Tudományegyetem egyetlen szerződött ingatlanközvetítő cégként a vásárlást követően - igény esetén - hathatósan tudjuk segíteni a vevőt az ingatlan albérlet útján történő hasznosításában is.Figyelem! Az ár nettó, 5% áfa terheli.

További adatok

Telekterület: -
Kert mérete: -
Erkély mérete: -
Felszereltség: -
Parkolás: -
Kilátás: utcai
Egyéb extrák:  
-

Hirdető adatai

Hirdető neve: Otthon Centrum
Kapcsolattartó: Gangel Bence
Hirdető telefonszáma: +36 70 412 3166
Honlap: -

Üzenetet küldhet a hirdetőnek:
Az Ön neve:
Az Ön e-mail címe:
Üzenet: