Hajdú-Bihar megye, Debrecen


 

Hivatkozási szám: 3217930

Ingatlan adatai

Irányár: 125 000 000 Ft
Típus: ház
Kategória: eladó
Alapterület: 145 m2
Fűtés: gáz (cirko)
Állapota: új
Szobák száma: 4
Építés éve: 2027
Szintek száma: -

Részletes leírás

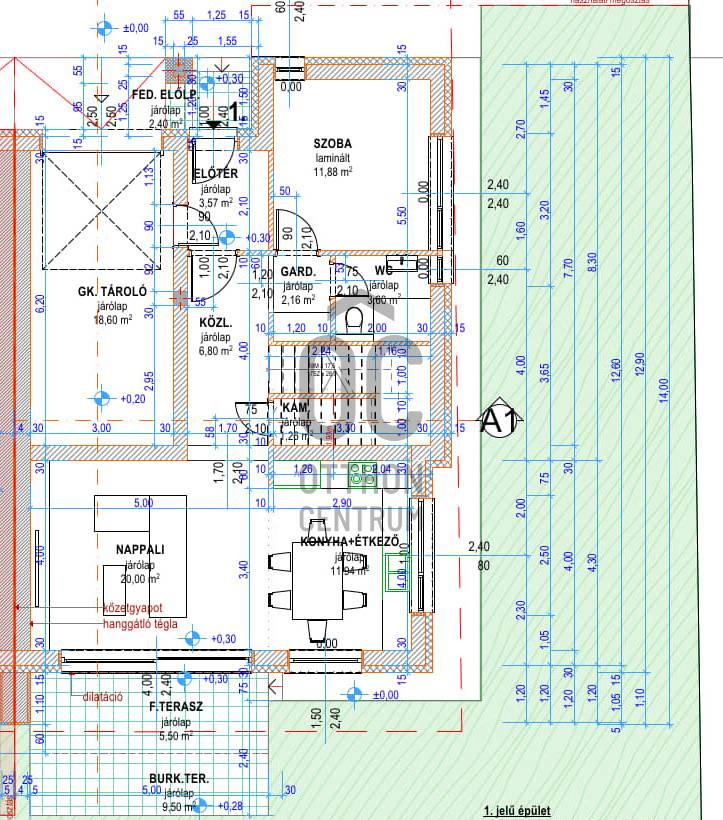
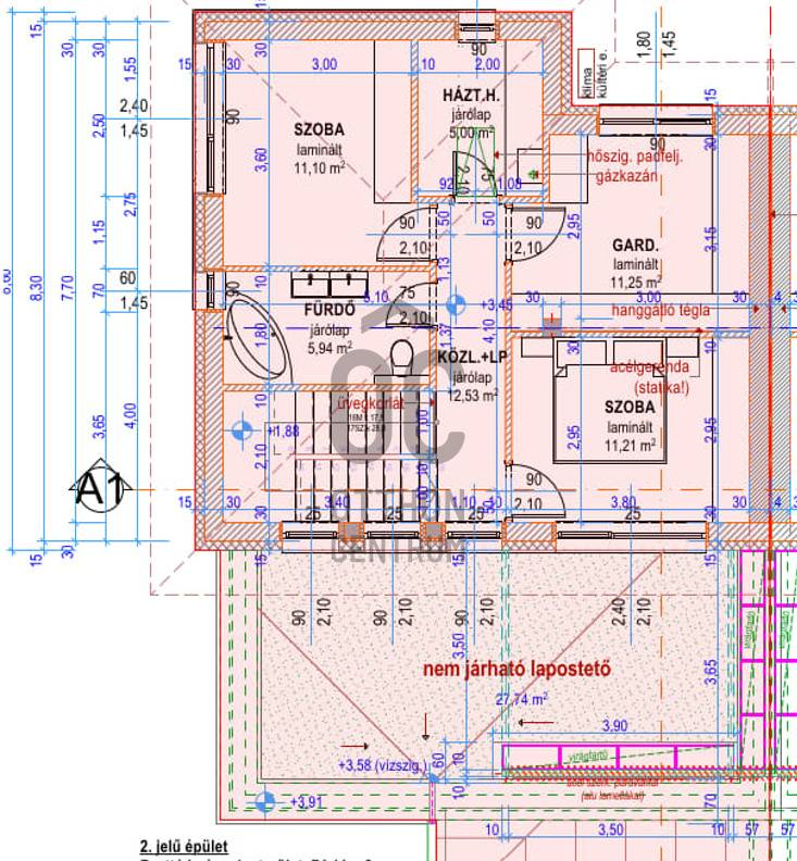
Az ingatlan 144,8 m2 alapterületű, saját udvarral.Projekt bemutatásaA megépítésre kerülő otthonok, a mai kornak megfelelő magas műszaki tartalommal , és modern technólógiával készülnek, átgondolt alprajzzal, élhető terekkel.A lakások praktikus elrendezése egy világos egybenyíló konyha - étkező - nappali életteret biztosítanak, 3 különnyíló szobát, gardrobot, háztartási helyiségeket foglal magába, így ideális választás családok számára.Alapterülete : 144,8 m2Minden lakáshoz saját kert és garázs tartozik, amely biztosítja a kertvárosi életérzést.Műszaki jellemzői :- Immergas 24 kw gondenzációs kazán- padlófűtés- porotherm falazat- 15 cm homlokzati szigetelés- 3 rtg hő - hangszigetelt nyílászárók- modern épületgépészet- minőségi burkolatok- motoros garázskapu- hőszivattyú csövezés, előkészítés későbbi telepítéshez- stb ....Ha felkeltettem az érdeklődését, kérem , hívjon bizalommal.

További adatok

Telekterület: 300 m2
Kert mérete: 300 m2
Erkély mérete: 15 m2
Felszereltség: -
Parkolás: -
Kilátás: -
Egyéb extrák:  
-

Hirdető adatai

Hirdető neve: Otthon Centrum
Kapcsolattartó: Tóth Ferenc
Hirdető telefonszáma: +36 70 716 9076
Honlap: -

Üzenetet küldhet a hirdetőnek:
Az Ön neve:
Az Ön e-mail címe:
Üzenet: