Hajdú-Bihar megye, Debrecen


 

Hivatkozási szám: 3217712

Ingatlan adatai

Irányár: 85 000 000 Ft
Típus: lakás (tégla)
Kategória: eladó
Alapterület: 75 m2
Fűtés: gáz (cirko)
Állapota: -
Szobák száma: 4
Építés éve: 1997
Szintek száma: -

Részletes leírás

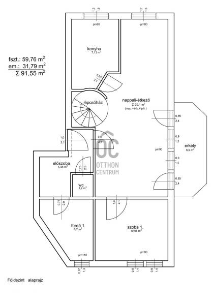
Debrecen Széchényi-kert belvároshoz közeli részén egy 1997-ben téglából épült társasház 2. emeleti 75/90 nm-es belső 2 szintes lakása ELADÓ.A lakás Nappali+3 szobás duplakomfortos és ami nagy ritkaság belső 2 szintes ingatlanoknál, hogy az alsó szinten is található egy szoba ami hálóként vagy dolgozóként is funkcionálhat.A lakás fűtése kombi turbós gázcirkó kazánnal működik radiátoros hőleadókkal. A tetőtérben mindkét szobában 2 éves hűtő-fűtő klíma található.Az ingatlan felújítandó állapotban van, de lokáció szempontjából és nagyságából adódóan egy nagyobb családnak is értékálló befektetés.A lakáshoz megvásárolható egy külön helyrajzi számon lévő földszinti 15 nm-es önálló garázs is aminek a vételára 10 Millió Ft. A lakshoz egy 4 nm-es födszinti tároló is tartozik.A társasház kis lakóközösségű(mindösze 18 lakás) és rendezett udvarral rendelkezik, ahol sütő-főzőhely és gyerekeknek játszóvár is található.A közös költség 16.000.- Ft. és megtakarítást is tartalmaz.Megtekintéssel és további információval kapcsolatban, kérem keressen az elérhetőségeimen.Ez az ingatlan a \"Felező csomag” megbízási portfólióhoz tartozik. Részletek az Otthon Centrum weboldalán.Ez az ingatlan a \"Felező csomag\" megbízási portfólióhoz tartozik. Részletek az Otthon Centrum weboldalán.

További adatok

Telekterület: -
Kert mérete: -
Erkély mérete: 7 m2
Felszereltség: -
Parkolás: -
Kilátás: udvari
Egyéb extrák:  
-

Hirdető adatai

Hirdető neve: Otthon Centrum
Kapcsolattartó: Szilágyi Tamás
Hirdető telefonszáma: +36 70 388 5771
Honlap: -

Üzenetet küldhet a hirdetőnek:
Az Ön neve:
Az Ön e-mail címe:
Üzenet: