Baranya megye, Pécs


 

Hivatkozási szám: 3217220

Ingatlan adatai

Irányár: 199 990 000 Ft
Típus: ház
Kategória: eladó
Alapterület: 360 m2
Fűtés: gáz (cirko)
Állapota: -
Szobák száma: 8
Építés éve: 2001
Szintek száma: -

Részletes leírás

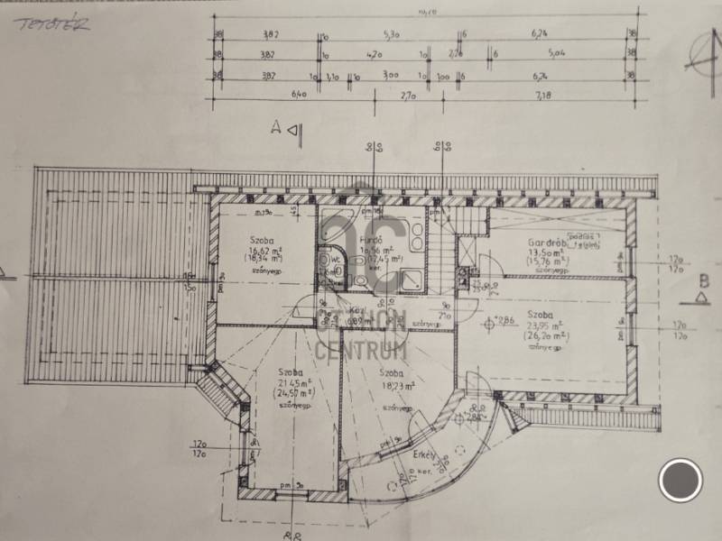
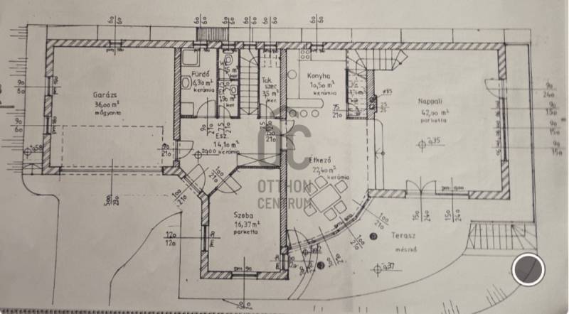
Pécs városában, a felkapott Rigóder városrészben kínálok eladásra egy igazán különleges ingatlant, amely tökéletes választás nagyobb családok, vagy akár több generáció számára is. Az ingatlan kiváló állapotban várja új tulajdonosát, hiszen prémium kivitelezés jellemzi, mely a modern minimalista kialakítással párosul.A 3*120, azaz 360 négyzetméteres alapterület és az 1147 négyzetméteres telek lehetőséget biztosít a tágas élettér kialakítására, amelyben 8 szoba és három fürdőszoba található, így minden családtag számára kényelmes, komfortos és intim helyet biztosít. A ház központi részét, a világos, tágas nappali képezi, amely a családi együttlétek ideális színhelye.Az amerikai konyha és a beépített bútorok, szekrények praktikussá teszik a mindennapokat. A 25 évvel ezelőtt, tégla falazattal épült, TONDACH cseréppel fedett, gázcirkó fűtésű, 5 klímával szerelt, 8 szobás, világos, nap sütötte, K-NY-i fekvésű, kényelmes, tripla komfortos, panorámás családi ház minden igényét ki fogja elégíteni!IDE, VALÓBAN, CSAK BE KELL KÖLTÖZNI!!!!A teljesség igénye nélkül, néhány, fontosabb tulajdonsága az ingatlannak:- A város egyik közkedvelt környékén a Rigóderi városrészben található- Nagyon szép állapot, 3 szinten- 10 KW-os napelem rendszer, mely teljesen fedezi az áramszámlát- A bejáratnál a térkő alatt, elektromos fűtés lett beépítve- 2 m3-es esővíz tároló- Kiépített kerticsapok - Szigetelt födém- Elektromos bejárati és garázs kapuk- 3*25 A- Minőségi burkolatok és szaniterek- Elegáns konyhabútor- Beépített, szép kivitelű, Zsolnay kandalló- Hatalmas, ablakok, szúnyoghálóval, redőnnyel szerelve- 2 állásos garázs, - 3 fürdőszoba,- 5 db Split klíma- 8 szoba,- hatalmas nappali (45 m2) - tágas étkező- 2 terasz és egy erkély- modern, letisztult kialakítású a ház minden szeglete.A 20 négyzetméteres terasz és a 15 négyzetméteres erkély, a pihenés és a kikapcsolódás tökéletes helyszínéül szolgál, ahol élvezheti a gyönyörű panorámát és a csendes környék nyugalmát. Az ingatlan fűtése gáz cirkó rendszerrel, míg a hűtés 5 db Split klímával biztosított, így a legmelegebb nyári napokon is kellemes a hőmérséklet minden helyiségben.A garázsban két autó parkolására van lehetőség, ami különösen fontos lehet a családosok számára. A kertkapcsolatos ház, tökéletes helyszín a szabadban való tartózkodásra és ideális választás akár kisállattal költözőknek is, hiszen a terület, körbekerített, rendezett, gondozott, a kertben többféle termő gyümölcsfa, valamint finom szőlő is megterem. A környék ellátottsága kiváló, hiszen a közeli üzletek, óvodák, iskolák és orvosi rendelők mind könnyen elérhetőek. A közlekedés szempontjából is kedvező a helyzet, hiszen a város tömegközlekedési lehetőségei kitűnőek, így a mindennapi ingázás egyszerű és gyors.A Rigóder városrész csendes, biztonságos és rendezett, ami ideális környezetet biztosít a gyerekek számára a szabadban való tartózkodáshoz.Ez a tehermentes ingatlan nem csupán egy új otthon, hanem egy valódi életstílus, ahol a modern dizájn és a praktikus megoldások találkoznak. Ha felkeltette érdeklődését ez a különleges ingatlan, ne habozzon, keressen bizalommal kérdéseivel! Az ingatlan piaca folyamatosan változik, így érdemes mielőbb lépni, hogy ne maradjon le erről a kivételes lehetőségről.Hétfőtől - Vasárnapig elérhető vagyok, a nap bármely szakában, szívesen állok a rendelkezésére, hogy megmutathassam Önnek ezt a nem mindennapi elhelyezkedésű, kialakítású és elrendezésű családi fészket!Teljes körű pénzügyi megoldások ügyintézése díjmentesen:* Bankfüggetlen hitelcenterünk díjmentesen versenyezteti minden bank és hitelintézet ajánlatát.* Önnek nincs más dolga, mint beszélgetni munkatársunkkal, majd a megversenyeztetett ajánlatokból kiválasztani a hosszútávon is a legmegfelelőbb konstrukciót.* Szakértőnk több mint 20 éves szakmai tapasztalattal és egyedi igényekre szabott, fogyasztóbarát lakáshitelekkel, babaváró hitellel, teljes körű CSOK ügyintézéssel várja Önt.* Előre egyeztetett időpontban.

További adatok

Telekterület: 1 147 m2
Kert mérete: 1 147 m2
Erkély mérete: 35 m2
Felszereltség: -
Parkolás: -
Kilátás: -
Egyéb extrák:  
-

Hirdető adatai

Hirdető neve: Otthon Centrum
Kapcsolattartó: Szilágyi Róbertné - Marcsi
Hirdető telefonszáma: +36 70 412 3761
Honlap: -

Üzenetet küldhet a hirdetőnek:
Az Ön neve:
Az Ön e-mail címe:
Üzenet: