Budapest, XVIII.kerület


 

Hivatkozási szám: 3217204

Ingatlan adatai

Irányár: 327 000 000 Ft
Típus: ház
Kategória: eladó
Alapterület: 285 m2
Fűtés: gáz (cirko)
Állapota: -
Szobák száma: 5
Építés éve: 2007
Szintek száma: -

Részletes leírás

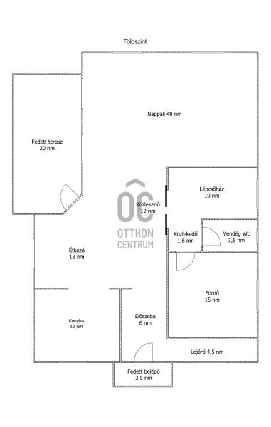
Eladó a 18. kerületben Kossuth Ferenc-telep részének csendes utcájában egy kitűnő mínőségben épült, sok extra megoldást is magában hordozó három szintes, 285 nm-es, 5 szobás családi ház. A szinteken, melyek mindegyike belső lépcsőházból átjárható, az igényes és funkcionális tervezés igényes anyagok felhasználásával, és magas színvonalú kivitelezéssel párosulnak. A földszinten 40 nm-es nappali, tágas konyha, tágas étkező, kényelmes előszoba, minden igényt kielégítő 15 nm-es fürdőszoba és vendég Wc található. Az emeleti (tetőtéri) szint a hálók szintje, melyből három található (24,12 és 24 nm), valamint egy további külön Wc és egy fürdő. A harmadik, szuterén szint kétállásos fűtött garázst, háztartási helyiséget, moziszobát, sport szobát és gardróbot foglal magába.A ház 2007-ben épült, de jelenlegi esztétikai és műszaki jellemzőinek teljességét 2014-ben történt felújításakor érte el. 15 cm-es külső szigeteléssel, tetőnél extra szigeteléssel, műanyag rehau nyílászárókkal, gáz-cirkóról és napelemmel üzemeltethető villamos kazánról táplált központi fűtéssel rendelkezik.Az ingatlan számtalan, a kényelmet és a komfortot szolgáló felszereltséggel rendelkezik: okos kamera és riasztórendszer, a nyílászárók elektromos redőnnyel és szúnyoghálóval ellátottak, helyiségei klímával felszereltek, kiépített központi porszívó, beépített vízlágyító, elektromos garázs és kertkapu, 20 nm-es fedett és szúnyoghálóval védett terasz, felszerelt moziszoba, wifiről irányítható öntöző rendszer, fúrt kút, merev falú fa berakású medence, fedett grillező.És lehet még fokozni: A tehermentes, gyorsan birtokba vehető ingatlan teljes berendezése is a vételár részét képezi.Ha felkeltettem érdeklődését, várom hívását!

További adatok

Telekterület: 819 m2
Kert mérete: 819 m2
Erkély mérete: 20 m2
Felszereltség: -
Parkolás: -
Kilátás: -
Egyéb extrák:  
-

Hirdető adatai

Hirdető neve: Otthon Centrum
Kapcsolattartó: Tőke Zoltán
Hirdető telefonszáma: +36 70 716 9386
Honlap: -

Üzenetet küldhet a hirdetőnek:
Az Ön neve:
Az Ön e-mail címe:
Üzenet: