Zala megye, Zalaegerszeg


 

Hivatkozási szám: 3216960

Ingatlan adatai

Irányár: 104 900 000 Ft
Típus: ház
Kategória: eladó
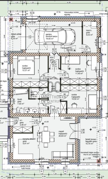
Alapterület: 130 m2
Fűtés: -
Állapota: új
Szobák száma: 4
Építés éve: 2026
Szintek száma: -

Részletes leírás

Van egy pont, amikor már nem kompromisszumot keresi, hanem végre azt, ami igazán Önhöz illik. Ez a 130 nm-es, egyszintes családi ház pontosan erről szól.Tágas nappali + 3 külön nyíló szoba – ahol mindenki megtalálja a saját terét. Letisztult formák, modern megoldások és egy otthon, ami már az első pillanatban megérinti.✅ Amitől igazán különleges:- 700 nm-es telek- Nappali +3 szoba- Garázs– Masszív Porotherm 30 N+F neo Rapid Dryfix falazat + 20 cm hőszigetelés → nyugalom és energiatakarékosság– 3 rétegű, barna fóliás nyílászárók → elegancia kívül-belül– Rejtett redőnyrendszer szúnyoghálóval → praktikum kompromisszumok nélkül– Bramac Tectura Novo antracit tető → karakteres megjelenés– BOSCH hőszivattyús rendszer padlófűtéssel → jövőálló technológia, alacsony rezsi– Prémium Ravak és Grohe fürdőszobai szaniterek → válassza ki, ami igazán Ön– Szabadon választható burkolatok → formálja a saját stílusára✅ A kulcsrakész állapot nem csak ígéret:– térkövezett kocsibeálló– járda– minden készen áll, hogy beköltözzönEz nem egy sablonház. Ez egy lehetőség arra, hogy végre olyan otthona legyen, ami Önről szól.✅ Nekeresdi városrész – nyugodt környezet, mégis közel mindenhez.Amennyiben a képek és a leírás alapján az ingatlan felkeltette az érdeklődését, keressen bizalommal a megadott elérhetőségeken, keresse az ingatlant a honlapunkon, több kép is segíti Önt a választásban!Irodánk teljes körű, díjmentes szolgáltatást nyújt kereső ügyfeleinknek, amennyiben Önnek hitelre van szüksége, segítünk! Szakszerű tanácsadással, hitel ügyintézéssel, energetikai tanúsítvány elkészítésével és kedvező díjszabású ügyvéddel nyújtunk segítséget!

További adatok

Telekterület: 700 m2
Kert mérete: 700 m2
Erkély mérete: 11 m2
Felszereltség: -
Parkolás: -
Kilátás: -
Egyéb extrák:  
-

Hirdető adatai

Hirdető neve: Otthon Centrum
Kapcsolattartó: Nikitscher-Rigó Diána
Hirdető telefonszáma: +36 70 412 5336
Honlap: -

Üzenetet küldhet a hirdetőnek:
Az Ön neve:
Az Ön e-mail címe:
Üzenet: