Budapest, IV.kerület


Tábor utca 

Hivatkozási szám: 3216626

Ingatlan adatai

Irányár: 110 000 000 Ft
Típus: lakás (tégla)
Kategória: eladó
Alapterület: 116 m2
Fűtés: gáz (cirko)
Állapota: felújított
Szobák száma: 3
Építés éve: -
Szintek száma: -

Részletes leírás

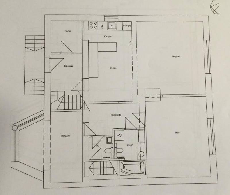
Újpest kertvárosában eladó egy kétlakásos ház földszinti 116.5 m2-es nappali + 2 hálószobás lakása garázzsal és pincével!Minden közmű egyénileg mérhető, külön gázkazán, gázóra, villanyóra, vízóra tartozik a lakáshoz.A pince 30 m2-es, a garázs 24 m2-es.Az ingatlan légkondicionált, műanyag külső nyílászárók vannak beépítve, belül tölgyfa beltéri ajtók vannak, 324 amperes áram van az ingatlanban, 2012-ben az egész ház fel lett újítva.A földszinti lakás részei: hatalmas 36 m2-es amerikai konyhás nappali, egy 20 m2-es szoba, egy 12 m2-es szoba, fürdőszoba, külön wc, gardrób.Közel a Tarzan park, UTE edzőpályák, a közlekedés kiváló, 14-es villamos, éjszakai busz, 220, 20, 121-es busz megállója a közvetlen közelében van.

További adatok

Telekterület: -
Kert mérete: -
Erkély mérete: -
Felszereltség: -
Parkolás: -
Kilátás: kertre néző
Egyéb extrák:  
-

Hirdető adatai

Hirdető neve: Horland Ingatlan
Kapcsolattartó: Hortobágyiné Magdi
Hirdető telefonszáma: +36204777632
Honlap: -

Üzenetet küldhet a hirdetőnek:
Az Ön neve:
Az Ön e-mail címe:
Üzenet: