Pest megye, Albertirsa


 

Hivatkozási szám: 3216600

Ingatlan adatai

Irányár: 56 000 000 Ft
Típus: ház
Kategória: eladó
Alapterület: 160 m2
Fűtés: házközponti fűtés
Állapota: -
Szobák száma: 4
Építés éve: 1980
Szintek száma: -

Részletes leírás

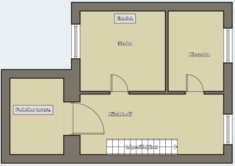
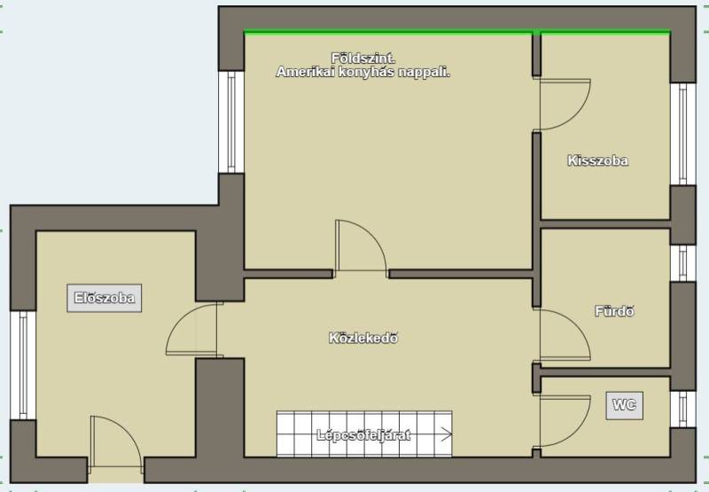
Azonnal költözhető!!!Hitelképes.Kiváló választás nagycsaládosok, illetve kétgeneráció együtt élésére!!Albertirsa város csendes, nyugodt részén.Megvételre kínálok egy két épület együttesből álló , két generáció együttélésére alkalmas ingatlant.Összközműves .707 nm sarki elhelyezkedésű körbekerített telken terül el , a fő épület mely 1980években épült , betonsáv alapon, tégla falazattal, beton födémmel , emeleti szinttel, és cserép héjazattal rendelkezik. 60nm alapterülettel bír, ugyanennyi nm az emeleti részen is. Tehát 120nm -en az emeleten két szoba nagy terasszal, a földszinten amerikai konyhás nappali, kis háló , fürdő , wc , előszoba , és lépcsőfeljárat helységekből áll.Fűtése központi fűtésről gázcirkóval és vegyes kazánnal is üzemeltethető.Nyílás zárói részben cseréltek.Kisház mely 40nm -es konyha, fürdő , nappali és egy háló szobából áll.Beton alapon , tégla falszerkezettel.Fűtése gázkonvektorral, illetve vegyes tüzelésű kandalló kályhával megoldott.A kert mérete ideális gyermekes családok számra, de egy kis kertészkedésre is lehetőséget nyújt, a növények locsolásáról fúrt kút gondoskodik.Vasútállomás 12perc, városközpont 5 perc alatt elérhető gyalogosan.Minden a képek szerint!Albertirsa menetrend szerű vonatközlekedéssel rendelkezik, mely Budapest Nyugati pályaudvartól 48 perces menetidővel közelíthető meg, Budapesttől 50 km távolságra Ferihegy repülőtértõl az új M4 autópályán 35 km távolságra helyezkedik el.Kérem hívjon bizalommal, hétvégén is állok ügyfeleink rendelkezésére!

További adatok

Telekterület: 707 m2
Kert mérete: 707 m2
Erkély mérete: -
Felszereltség: -
Parkolás: -
Kilátás: -
Egyéb extrák:  
-

Hirdető adatai

Hirdető neve: Dabas Régió
Kapcsolattartó: Pilis Anna
Hirdető telefonszáma: 06204004025
Honlap: -

Üzenetet küldhet a hirdetőnek:
Az Ön neve:
Az Ön e-mail címe:
Üzenet: