Zala megye, Keszthely


 

Hivatkozási szám: 3216481

Ingatlan adatai

Irányár: 83 550 000 Ft
Típus: lakás (újépítésű)
Kategória: eladó
Alapterület: 64 m2
Fűtés: -
Állapota: új
Szobák száma: 2
Építés éve: 2026
Szintek száma: -

Részletes leírás

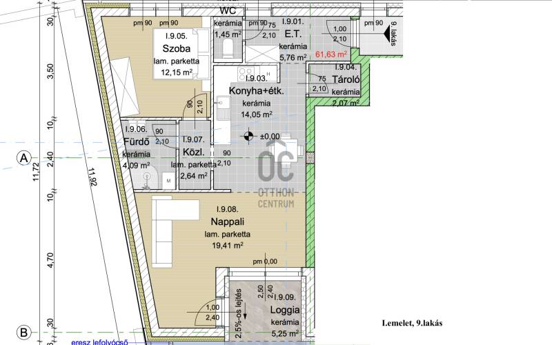
Projekt bemutatásaKESZTHELY BELVÁROSÁBAN, közel a sétáló utcához, különböző méretűlakások, épülő 26 lakásos társasházban, 2028. II. negyedév végi átadássalleköthetők!A minőségi beépített anyagok kizárólag nagymúltú gyártók termékei közülkerül ki. Egyedi tervezésének köszönhetően, hosszú távra kiváló otthonérzetét kelti.Az építkezés kezdete: 2026. áprilisKulcsrakész átadás: 2028. júliusMŰSZAKI TARTALOM:-Pontalapozás 25 cm vastag vasbeton lemezalapra-Monolit vasbeton vázzal és statikailag méretezett födémekkel, kerámia éspórusbeton kitöltő falakkal-A pincefalak és a lépcsőházak vasbetonból, míg a külső falak Porothermvázkerámia és Silka pórusbeton falazatok-Hőszigetelés és hangszigetelés a legmodernebb anyagokkal, a komfortoslakóterekért-Monolit vasbeton födémek, rejtett gerendákkal és akusztikai szigeteléssel-A műanyag homlokzati nyílászárók három rétegű üvegezéssel, jó légzárással,redőnyszekrénnyel és motoros mozgatás előkészítéssel rendelkeznek-Az erkélyek csúszásmentes és fagyálló gres burkolattal-Homlokzat 15 cm-es hőszigetelés, fehér nemes vakolat-Kleemann 8 személyes lift EPH védelemmel-Melegvíz, Ariston Velis bojler-Padlófűtés „Daikin” hőszivattyú-Riasztó előkészítés-Konyha: gépészet, elektromos kiállások kialakítva, bútor nélkül-Épített zuhany, üveg fallal-Vizes helyiségek: kerámia 7 500.- FT + áfa / nm-Szobák: laminált parketta 7 500.-Ft. + áfa / nm-Falak: diszperziós festés fehér Baumit anyagokkal-Kapacitás: lakásonként 32 A- Lakás méretek: 38 M2 - 68 M2-Ig ÉRTÉKESÍTÉSI ÜTEMTERV:- Foglaló: 10% + 10% vételár előlegKÜLÖN HOZZÁVÁSÁROLHATÓ A projekthez 29 teremgarázs tartozik: 6,5 M Ft/ db.További információért és személyes megtekintésért keressen bizalommal!

További adatok

Telekterület: -
Kert mérete: -
Erkély mérete: 5 m2
Felszereltség: -
Parkolás: -
Kilátás: udvari
Egyéb extrák:  
-

Hirdető adatai

Hirdető neve: Otthon Centrum
Kapcsolattartó: Molnár Henriett
Hirdető telefonszáma: +36 70 412 5631
Honlap: -

Üzenetet küldhet a hirdetőnek:
Az Ön neve:
Az Ön e-mail címe:
Üzenet: