Pest megye, Dunaharaszti


 

Hivatkozási szám: 3216383

Ingatlan adatai

Irányár: 148 900 000 Ft
Típus: ház
Kategória: eladó
Alapterület: 117 m2
Fűtés: -
Állapota: új
Szobák száma: 5
Építés éve: 2026
Szintek száma: -

Részletes leírás

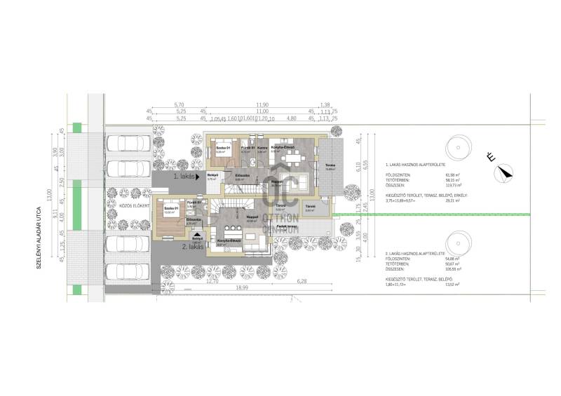
Dunaharaszti közkedvelt részén, a Bezerédi lakópark csendes, családi házas övezetében kínálunk megvételre egy kiváló adottságokkal rendelkező, új építésű ikerházfelet. Az ingatlan kialakítása és műszaki megoldásai révén teljes mértékben biztosítja az önálló családi ház komfortját, így ideális választás mindazok számára, akik kompromisszumok nélkül szeretnének nyugodt otthont.A lakás bruttó 110,43 m² alapterületű, amelyhez további 13,52 m² terasz és erkély kapcsolódik, valamint egy 405 m²-es, saját használatú kert is tartozik. A belső tér praktikus elrendezésű: egy tágas nappali mellett 4 külön nyíló szoba, 2 fürdőszoba és egy gardróbhelyiség került kialakításra.Az ingatlan kiemelkedően energiatakarékos (A+ besorolás), amelyet korszerű hőszivattyús rendszer szolgál ki. A padló-, mennyezet- és falfűtés-hűtés minden évszakban egyenletes hőérzetet biztosít, miközben a fenntartási költségek alacsonyan tarthatók.Az ikerház egyik legnagyobb előnye a kiváló műszaki szeparáció: a lakóegységeket dupla fal választja el, a födémszerkezetek külön készülnek, így a hangszigetelés és a privát szféra is magas szinten biztosított.FŐBB PARAMÉTEREK:•110,43 m² lakótér + 13,52 m² kültéri kapcsolatok •405 m²-es saját kert •Nappali + 4 szoba •2 fürdőszoba•A+ energiahatékonyság •Hőszivattyús rendszer, komplex felületfűtéssel és -hűtéssel •3 rétegű, korszerű nyílászárók •Elektromos redőny előkészítés, szúnyogháló MŰSZAKI TARTALOM röviden:•30 cm-es Porotherm falazat •15 cm EPS + 25 cm PIR hőszigetelés •Monolit vasbeton födém •Terrán Zenit Resistor tetőcserép (grafit árnyalatban) •Stabil, vasbeton megerősítésű szerkezet •Igény szerint választható burkolatok A ház egyedi igényekhez is igazítható: lehetőség van napelem előkészítésre, illetve okosotthon rendszer kialakítására is.A környezet ideális családosok számára: a lakópark utcái forgalommentesek, a közelben pedig minden fontos intézmény és szolgáltatás megtalálható – bevásárlási lehetőségek, óvoda, iskola, orvosi rendelő, valamint tömegközlekedési kapcsolatok.Átadás várható ideje: 2026. júliusAz ingatlan foglalása már 30% önerő befizetésével lehetséges.Igény esetén teljes körű ügyintézésben is segítünk – hitelügyintézésben és jogi háttér biztosításában egyaránt.Ha egy modern, jól átgondolt otthont keres, amely hosszú távon is értéket képvisel, érdemes személyesen is megismernie!Érdeklődés esetén keressen bizalommal, akár hétvégén is!

További adatok

Telekterület: 405 m2
Kert mérete: 405 m2
Erkély mérete: 12 m2
Felszereltség: -
Parkolás: -
Kilátás: -
Egyéb extrák:  
-

Hirdető adatai

Hirdető neve: Otthon Centrum
Kapcsolattartó: Kozmáné Buga Adrienne
Hirdető telefonszáma: +36 70 469 3986
Honlap: -

Üzenetet küldhet a hirdetőnek:
Az Ön neve:
Az Ön e-mail címe:
Üzenet: