Hajdú-Bihar megye, Debrecen


 

Hivatkozási szám: 3216353

Ingatlan adatai

Irányár: 650 000 Ft/hó
Típus: lakás (újépítésű)
Kategória: kiadó
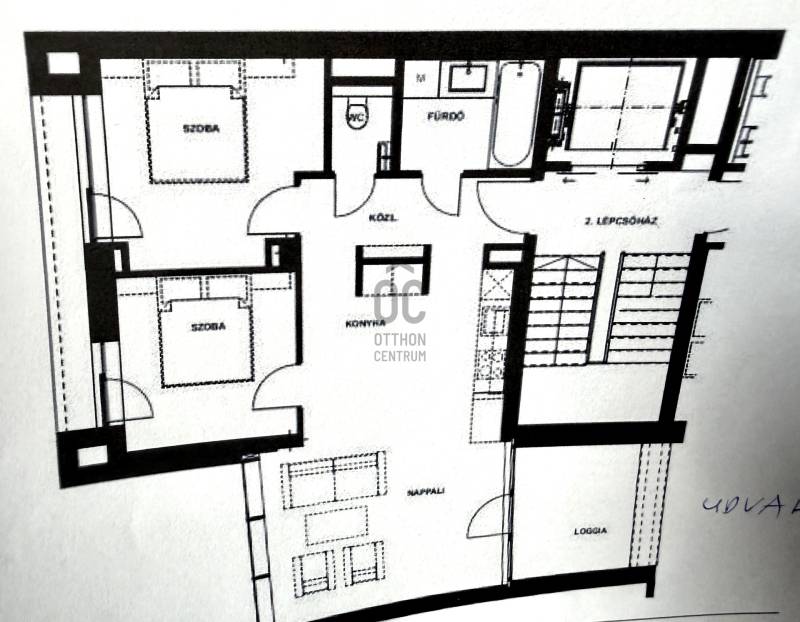
Alapterület: 67 m2
Fűtés: házközponti egyedi méréssel
Állapota: új
Szobák száma: 3
Építés éve: 2026
Szintek száma: -

Részletes leírás

KIADÓ ÚJÉPÍTÉSŰ PRÉMIUM LAKÁS DEBRECEN SZÍVÉBEN – KÁLVIN TÉREN!!67 m², teljes bútorzat, szárítógép, havi 1 takarítás – csak a bőröndöd kell hoznod!Új építésű, még senki sem lakta – valódi prémium élmény!Debrecen belvárosának szívében, a Hilton szálloda közvetlen szomszédságában kiadó egy 2026-ban épült, prémium minőségű, 67 m²-es lakás, ahol a modern városi élet és a kényelmes otthon tökéletes harmóniában találkozik.Lakás jellemzői:•Nappali + konyha + étkező egy légtérben•2 külön nyíló hálószoba•Teraszkapcsolat•Külön fürdőszoba és WC•4.emelet, liftes épület•Még senki sem lakta – az első lakó lehetsz!Teljesen felszerelt – azonnal költözhető•Teljes bútorzat, Tv, Klíma, és dekoráció•Konyhai eszközök: edények, tányérok, evőeszközök, poharak•Háztartási gépek: mosógép, szárítógép, porszívó•Ágynemű, minden alapvető felszerelésValóban csak a bőröndödet kell hoznod!Extra szolgáltatás•Az ár tartalmaz havi 1 profi takarítást, így mindig tiszta és rendezett a lakás.Parkolás•Liftes gépkocsi tároló az épületben + 30,000 Ft/hóLokáció•Belváros, Kálvin tér, éttermek, kávézók, üzletek és szolgáltatások pár lépésre•Ideális választás városi életet kedvelőknek, üzletembereknek vagy igényes bérlőknekEz a lakás nem csupán hely, hanem életstílus – prémium komfort, modern felszereltség, még senki sem lakta és azonnal költözhető.Tökéletes választás igényes bérlőknek, üzletembereknek vagy külföldi ügyfeleknek, akik kompromisszummentes, azonnal költözhető, prémium otthont keresnek Debrecen egyik legjobb helyén.Bérleti díj: 650.000 Ft + 2 havi kaució.Megtekintéssel, bővebb információval kapcsolatban várom hívását!

További adatok

Telekterület: -
Kert mérete: -
Erkély mérete: 8 m2
Felszereltség: -
Parkolás: -
Kilátás: utcai
Egyéb extrák:  
-

Hirdető adatai

Hirdető neve: Otthon Centrum
Kapcsolattartó: Szaszala Zsolt
Hirdető telefonszáma: +36 70 469 3681
Honlap: -

Üzenetet küldhet a hirdetőnek:
Az Ön neve:
Az Ön e-mail címe:
Üzenet: