Pest megye, Kistarcsa


 

Hivatkozási szám: 3216288

Ingatlan adatai

Irányár: 145 900 000 Ft
Típus: ház
Kategória: eladó
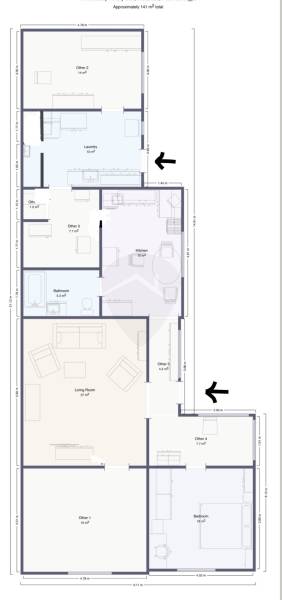
Alapterület: 125 m2
Fűtés: egyéb
Állapota: -
Szobák száma: 4
Építés éve: 1970
Szintek száma: -

Részletes leírás

Ez a kistarcsai családi ház ideális választás azoknak, akik nyugodt kertvárosi környezetben szeretnének élni, mégis gyorsan elérni Budapestet.Kistarcsán, csendes, rendezett, kiváló lakóközösségű utcában kínálunk megvételre egy 125 nm-es lakóterületű, két bejárattal rendelkező, kétgenerációs családi házat. A külön bejáratú lakrészek lehetővé teszik több generáció együttélését, de alkalmas lehet bérbeadásra vagy otthoni vállalkozás kialakítására is.A ház masszív tégla falazattal épült, tetőfedése időtálló Bramac cserép. A korszerű műanyag nyílászárók jó hőszigetelést biztosítanak. A fűtésről kombi gázkazán és vegyes tüzelésű kazán gondoskodik, a hőleadás a szobákban radiátorokon keresztül történik, míg a többi helyiségben kellemes padlófűtés biztosítja a komfortot.A szobák burkolata igényes szalagparketta, amely tovább fokozza az otthon meleg hangulatát.Az ingatlan egy 1073 nm-es, gondozott telken helyezkedik el, ahol gyümölcsfák is megtalálhatók – tökéletes helyszín pihenéshez vagy családi összejövetelekhez. Udvaron fúrt kút található, így megoldott a kert gondozásához szükséges víz. A 11 nm-es terasz ideális a reggeli kávézáshoz vagy esti kikapcsolódáshoz.A parkolásról garázs, valamint térkövezett felszíni gépkocsibeálló gondoskodik.Ez az otthon kiváló elhelyezkedésének, praktikus kialakításának és barátságos környezetének köszönhetően ritka lehetőség a piacon.Ne hagyja ki – jöjjön el, és szeressen bele!

További adatok

Telekterület: 1 079 m2
Kert mérete: 1 079 m2
Erkély mérete: 11 m2
Felszereltség: -
Parkolás: -
Kilátás: utcai
Egyéb extrák:  
-

Hirdető adatai

Hirdető neve: Intor Ingatlan Powered By RH
Kapcsolattartó: Kertész Rebeka
Hirdető telefonszáma: +36 70 467 6820
Honlap: -

Üzenetet küldhet a hirdetőnek:
Az Ön neve:
Az Ön e-mail címe:
Üzenet: