Heves megye, Hatvan


 

Hivatkozási szám: 3216223

Ingatlan adatai

Irányár: 12 000 000 Ft
Típus: nyaraló
Kategória: eladó
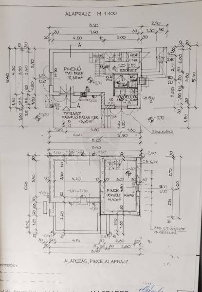
Alapterület: 45 m2
Fűtés: -
Állapota: -
Szobák száma: 1+2
Építés éve: 1990
Szintek száma: -

Részletes leírás

*** Tégla építésű nyaraló eladó mindössze 40 percre Budapesttől! ***Eladó egy B30-as TÉGLÁBÓL épült 45m2-es hétvégi ház Hatvan külterületén. Az épületbe egy teraszon keresztül jutunk, ahol a földszinten egy nappali, főzőfülke, fürdőszoba és egy kamra található pincelejáróval. Az emeletre egy masszív falépcsőn keresztül jutunk, ahol 2 db hálószoba található. A téli kellemes hőérzetről és hangulatról egy kályha gondoskodik. A tágas 13 m2-es terasz tökéletes helyszín a reggeli kávézáshoz vagy a pihenéshez, ahol élvezheted a FRISS LEVEGŐT és a CSENDES környék nyugalmát. Az ingatlan szerkezetileg kifogástalan, belső állapota átlagos állapotú, ezáltal SAJÁT ÍZLÉSED szerint alakíthatod.Az épület 32 amperes villanyórával rendelkezik. A többi közmű nincs kiépítve ezen a részen. A telek 1200 m2-es, ezáltal hobbikertnek tökéletesen alkalmas.A környék adottságai páratlanok! Hatvan városában minden megtalálható, amire csak szükséged lehet. Közlekedési szempontból is ideális a helyszín! Az ingatlan könnyen megközelíthető autóval akár Budapestről is az M3-as autópályának köszönhetően (kb. 40-50 perc), ezáltal ideális választás Hétvégi háznak vagy állandó lakhatás céljára is.Az új otthonod csak egy telefonhívásnyira van! Hívj bizalommal és ne hagyd ki ezt a lehetőséget!

További adatok

Telekterület: 1 200 m2
Kert mérete: 1 200 m2
Erkély mérete: 13 m2
Felszereltség: -
Parkolás: -
Kilátás: kertre néző
Egyéb extrák:  
-

Hirdető adatai

Hirdető neve: Ingatlanmentor powered by Rock Home
Kapcsolattartó: Horváth Tibor
Hirdető telefonszáma: +36 70 467 6871
Honlap: -

Üzenetet küldhet a hirdetőnek:
Az Ön neve:
Az Ön e-mail címe:
Üzenet: