Hajdú-Bihar megye, Hajdúsámson


 

Hivatkozási szám: 3215856

Ingatlan adatai

Irányár: 71 900 000 Ft
Típus: ház
Kategória: eladó
Alapterület: 108 m2
Fűtés: -
Állapota: új
Szobák száma: 4
Építés éve: 2026
Szintek száma: -

Részletes leírás

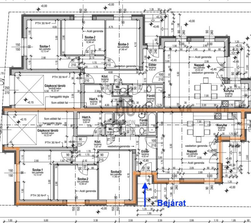
FIGYELEM! ÚJ ÉPÍTÉSŰ, DÉLI FEKVÉSŰ IKERHÁZ ELADÓ – GARÁZZSAL, SAJÁT TELEKKEL, KIEMELKEDŐ ÁRON!Debrecen vonzáskörzetében, Hajdúsámson - Sámsonkert fejlődő részén, 108 m²-es, egyszintes ikerház, 457 m² saját telekrésszel eladó. Az ikerház déli fekvésű, így a lakótér egész nap világos és kellemesen benapozott. A két lakás közül már csak a jobb oldali lakás érhető el! Kulcsrakész, modern otthon garázzsal, 59 millió Ft. – a négyzetméterár mindössze 546.000 Ft, A 24 méteres utcafronttal rendelkező telekrész külön is kiemelkedő értékű, mindössze 12,9 millió Ft.A vételár 71.9 millió Ft ( ház+telek)Helyiségek-Előszoba-3 külön nyíló szoba-Tágas, 38 m²-es nappali – étkező – konyha egy légtérben-Fürdőszoba sarokkáddal, zuhannyal és WC-vel-Külön WC-Háztartási helyiség / mosókonyha-Nappaliból nyíló terasz-GarázsMűszaki tartalom-Porotherm 30 NF tégla falazat-15 cm külső hőszigetelés-30 cm födémszigetelés-12 cm aljzatszigetelés-5 légkamrás, 3 rétegű műanyag nyílászárók-Hőszivattyús fűtési rendszer padlófűtésselAz ár tartalmazza a hátsó és oldalsó kerítést, valamint 1 db klímaberendezést.ÁtadásAz ingatlan kulcsrakész állapotban, legkésőbb 2026.12.30-ig elkészül.Debrecenben egy 70 m²-es panel lakás ára gyakran eléri ezt az összeget – garázs és saját telek nélkül.FinanszírozásAz ingatlanra banki hitel és CSOK is igényelhető.Ne maradjon le róla – már csak az egyik ikerház elérhető!További információért, alaprajzokért vagy megtekintésért hívjon bizalommal!

További adatok

Telekterület: 457 m2
Kert mérete: 457 m2
Erkély mérete: 10 m2
Felszereltség: -
Parkolás: -
Kilátás: -
Egyéb extrák:  
-

Hirdető adatai

Hirdető neve: Otthon Centrum
Kapcsolattartó: Szaszala Zsolt
Hirdető telefonszáma: +36 70 469 3681
Honlap: -

Üzenetet küldhet a hirdetőnek:
Az Ön neve:
Az Ön e-mail címe:
Üzenet: