Zala megye, Cserszegtomaj


 

Hivatkozási szám: 3215705

Ingatlan adatai

Irányár: 155 000 000 Ft
Típus: ház
Kategória: eladó
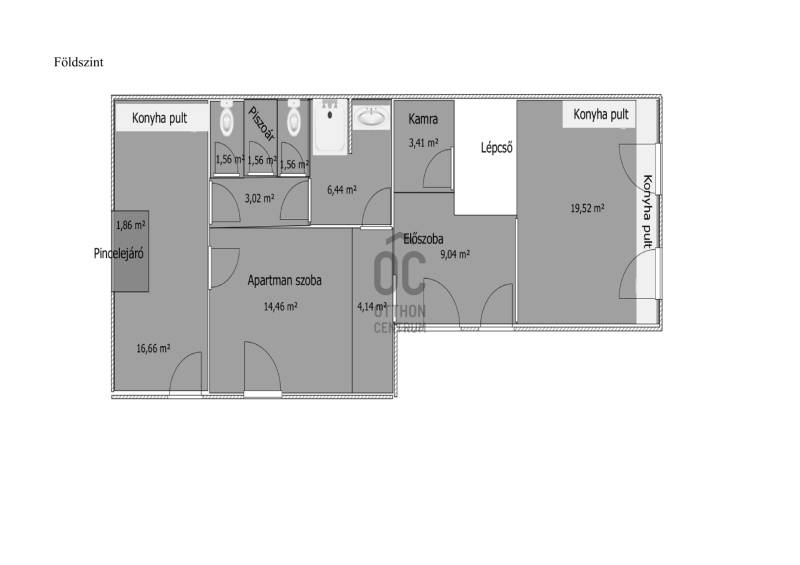
Alapterület: 220 m2
Fűtés: egyéb
Állapota: -
Szobák száma: 4
Építés éve: 1989
Szintek száma: -

Részletes leírás

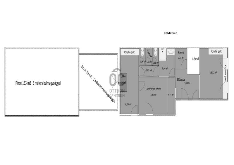
Cserszegtomaj csendes, nyugodt részén, egy zsákutcában kínálok megvételre egy igazán különleges, impozáns megjelenésű, örökpanorámás családi házat, mely egy karnyújtásnyira vana Balatontól, gyönyörű erdő ölelésében.Az ingatlan egyik legnagyobb értéke a föld alatt található, hatalmas borospince, amely nemcsak különleges hangulatot áraszt, hanem komoly lehetőségeket is rejt magában. Az előző tulajdonosok borászatot üzemeltettek itt, így a pince akár hasonló célra, akár exkluzív hobbitérként, tárolóként vagy vendégfogadásra is kiválóan hasznosítható.A ház belső kialakítása tágas és élhető tereket kínál:- 4 kényelmes szoba, - egy tágas étkező, - 2 fürdőszoba és több mellékhelység- valamint egy full panorámás nappali szolgálja a mindennapi kényelmet. A ház fűtése pellet kazánnal van megoldva. Vegyestüzelésű illetve gázkazán is van, tartályos gáz telepíthető, a meleg víz ellátás elektromos. BWT aqa perla víz lágyító van beszerelve. Áramellátás: 3*16 AmperAz ingatlan duplakomfortos, emellett külön vendégrészleggel is rendelkezik, így nagyobb családoknak, többgenerációs együttélésre vagy vendégek fogadására is ideális választás.A pihenést tavasztól egészen őszig egy kellemes, árnyékos terasz teszi teljessé, ahol a csend, a nyugalom és a gyönyörű környezet garantált.A kivételes adottságú kert akár medence kiépítésére is alkalmas, így fürdőzés közben csodálhatja a panorámás tájat.Az udvaron akár 4 autó is kényelmesen parkolhat, fedett garázs is található.Ez az ingatlan tökéletes választás mindazok számára, akik nyugodt, exkluzív környezetben keresnek tágas otthont, különleges extrákkal és páratlan panorámával.Az alaprajz és a négyzetméter adatok tájékoztató jellegűek, a tulajdonostól származnak.

További adatok

Telekterület: 1 670 m2
Kert mérete: 1 670 m2
Erkély mérete: 38 m2
Felszereltség: -
Parkolás: -
Kilátás: -
Egyéb extrák:  
-

Hirdető adatai

Hirdető neve: Otthon Centrum
Kapcsolattartó: Böde Vanessza
Hirdető telefonszáma: +36 70 716 9796
Honlap: -

Üzenetet küldhet a hirdetőnek:
Az Ön neve:
Az Ön e-mail címe:
Üzenet: