Pest megye, Kartal


 

Hivatkozási szám: 3215548

Ingatlan adatai

Irányár: 40 000 000 Ft
Típus: ház
Kategória: eladó
Alapterület: 85 m2
Fűtés: gáz (konvektor)
Állapota: felújítást igényel
Szobák száma: 3
Építés éve: 1976
Szintek száma: -

Részletes leírás

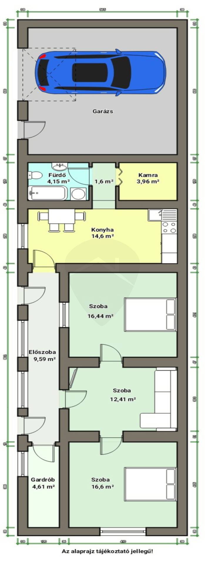
*** Kartalon eladó régi típusú TÉGLÁBÓL épült parasztház! Ritkaság!***Kartal egyik legkedveltebb utcájában kínálok eladásra egy nettó 85 m2-es, jó elosztású, felújítandó állapotú házat kedvező áron. Az ingatlanban 2 külön bejáratú szoba, 1 nappali, egy tágas konyha, közlekedő, tároló, kamra és egy fürdőszoba található. A telek összközművesített, minden közmű rendelkezésre áll. Fűtésről gázkonvektorok gondoskodnak, viszont igény esetén kályha is beköthető. Igény esetén akár azonnal birtokba vehető. A telek mérete ideális, hiszen a 700 m2 kényelmesen átalakítható, karbantartható a hétvégéken. A ház mellett egy tágas kb. 25 m2-es Garázs + tároló található, amely alatt pince is elérhető.Nagy ELŐNYE, hogy a falak és a tető szerkezetileg jó állapotú a korához képest, illetve a központi elhelyezkedésének köszönhetően minden fontosabb szolgáltatás 5 percen belül elérhető. Az utca és a település is rendezett, kedves szomszédok vannak.Jöjjön nézze meg és tegyen rá ajánlatot! Mielőbbi megtekintés miatt várjuk hívását!

További adatok

Telekterület: 705 m2
Kert mérete: 705 m2
Erkély mérete: -
Felszereltség: -
Parkolás: -
Kilátás: utcai
Egyéb extrák:  
-

Hirdető adatai

Hirdető neve: Ingatlanmentor powered by Rock Home
Kapcsolattartó: Horváth Tibor
Hirdető telefonszáma: +36 70 467 6871
Honlap: -

Üzenetet küldhet a hirdetőnek:
Az Ön neve:
Az Ön e-mail címe:
Üzenet: