Pest megye, Albertirsa


 

Hivatkozási szám: 3215410

Ingatlan adatai

Irányár: 85 000 000 Ft
Típus: ház
Kategória: eladó
Alapterület: 108 m2
Fűtés: -
Állapota: új
Szobák száma: 4
Építés éve: 2026
Szintek száma: -

Részletes leírás

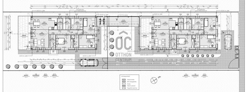
Albertirsán új építésű ikerház eladó!Mi az, ami most meg inkább előtérbe kerül, ha ingatlan vásárlás előtt állunk?Na nézzük...▪️Legyen korszerű▪️Nem szeretnénk már felújítással bajlódni, hiszen most minden teljesen kiszámíthatatlan▪️Árban elérhető és megfizethető legyen▪️És természetesen legyenek alacsony, akár nulla fenntartási költségeiMutatom azt az ingatlant, SŐT 2 KÜLÖNBÖZŐ MÉRTETŰ LAKÁST is, ami minden elvárásunknak megfelelő még a változó piacon is!Első lakás 141 nm hasznos alaterület,melyhez 340 nm-es telek tartozik.Hátső lakás 108 nm-es hasznos alperület,melyhez 620 nm-es telek tartozik.Alacsony fenntartási költségekkel rendelkező, új építésű ikerház melynél nincs közös fal.Kiváló ár-érték arányban elérhető lakások, minőségi anyagokból, magas műszaki tartalommal, ne szalaszd el az lehetőséget, hogy megfizethető áron Tiéd legyen egy alacsony fenntartási költségekkel rendelkező új építésű lakás AlbertirsánFőbb műszaki tartalom:-Teherhordó falazat Leier vagy Porotherm 30-as tégla.-Szeglemezes tetőszerkezet,betoncserép héjazattal, vele színazonos esőcsatornával.-Gipszkarton álmennyezet.-Külső homlokzat 15 cm vastag EPS hőszigetelő rendszer, szemcseméretű kapart nemes díszítő vakolattal.-Nyílászárók műanyag szerkezetű, 3 rétegű üvegezéssel, fehér színben. Kívül, belül műanyag párkánnyal.-Árnyékolás beépített, rejtett alumínium redőnnyel fehér színben, szúnyoghálóval, motoros mozgatással történik.-Fűtés lakásonként méretezett hőszivattyúval, amely a melegvíz ellátást és a padlófűtést biztosítja.-Épített zuhanyzó.-Beltéri ajtók alap cpl uht tokos teli ajtó biztosított.-Burkolatok, laminált parketta és kerámia burkolat választható 6000 ft/nm áron.-Külső állagmegóvó járda térkövezve 60 nm/lakás.-Átadás 2027 májusaNézzük meg együtt és tervezd meg az új lakásodat itt Albertirán!Várom megtiszesztelő hívását hétvégén is!

További adatok

Telekterület: 620 m2
Kert mérete: 620 m2
Erkély mérete: -
Felszereltség: -
Parkolás: -
Kilátás: -
Egyéb extrák:  
-

Hirdető adatai

Hirdető neve: Otthon Centrum
Kapcsolattartó: Szoboszlai Katalin
Hirdető telefonszáma: +36 70 469 3221
Honlap: -

Üzenetet küldhet a hirdetőnek:
Az Ön neve:
Az Ön e-mail címe:
Üzenet: