Budapest, IX.kerület


 

Hivatkozási szám: 3215221

Ingatlan adatai

Irányár: 56 500 000 Ft
Típus: lakás (tégla)
Kategória: eladó
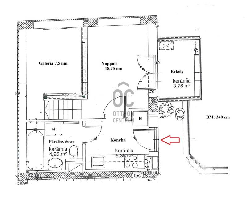
Alapterület: 28 m2
Fűtés: házközponti egyedi méréssel
Állapota: -
Szobák száma: 1
Építés éve: 2007
Szintek száma: -

Részletes leírás

Megtaláltad első lakásodat egy olyan helyen, ahol a városi élet pezsgése és a csendes pihenés tökéletes harmóniában találkozik. Ez a 28.36 nm-es, egy szobás + 7,5 nm-es galériás lakás Budapest 09. kerületének Középső Ferencváros részén várja új tulajdonosát. A lakás jó állapotú a beépített bútorok és szekrények révén maximálisan kihasználhatod a teret. Az ingatlan a nettó területén felül 3.76 nm-es erkéllyel rendelkezik, amely egy hangulatos, növényekkel teli belső udvarra néz.A társasház nagyon jó állapotú, rendezett és karbantartott, 2007-ben épült.A házközponti fűtés egyedi méréssel működik, így mindig a legoptimálisabb hőmérsékletet biztosítja számodra. Közös költség 22.000 Ft, mely magába foglalja a felújítási alapot, szemét díjat, takarítást, közös terek világítását és a közös képviselet díjazását is.Belmagasság 340 cm, a galéria magassága 150 cm.A lakás tehermentes, így a vásárlás folyamata gyors és zökkenőmentes lehet. A környék ellátottsága kiváló, hiszen számos bolt, étterem és szolgáltatás a közvetlen közelben található. A belvárosi elhelyezkedés lehetővé teszi, hogy mindent könnyedén elérj, legyen szó munkáról vagy szórakozásról. A közlekedési csomópont közelsége (Corvin-negyed) miatt a kitűnő közlekedés garantált, így akár autóval, akár tömegközlekedéssel könnyedén elérheted a város bármely pontját. A csendes környék lehetőséget biztosít arra, hogy a város nyüzsgésétől távol, mégis közel élhess. Itt nemcsak a mindennapi élet kényelme, hanem a biztonság is garantált. Ez a lakás ideális választás lehet első lakásvásárlók számára, akik szeretnének egy olyan otthont, ahol a városi élet minden előnye elérhető, de a nyugalom is garantált. Illetve befektetésnek is remek vétel egyetemek közelsége miatt.Ha bármilyen kérdésed van, vagy szeretnéd megtekinteni ezt a remek lehetőséget, akkor várom megkeresésedet hétköznap és szombaton is!

További adatok

Telekterület: -
Kert mérete: -
Erkély mérete: 4 m2
Felszereltség: -
Parkolás: -
Kilátás: kertre néző
Egyéb extrák:  
-

Hirdető adatai

Hirdető neve: Otthon Centrum
Kapcsolattartó: Cseh Attila
Hirdető telefonszáma: +36 70 469 3306
Honlap: -

Üzenetet küldhet a hirdetőnek:
Az Ön neve:
Az Ön e-mail címe:
Üzenet: