Budapest, XVII.kerület


 

Hivatkozási szám: 3215177

Ingatlan adatai

Irányár: 244 990 000 Ft
Típus: ház
Kategória: eladó
Alapterület: 206 m2
Fűtés: gáz (cirko)
Állapota: -
Szobák száma: 6
Építés éve: 2002
Szintek száma: -

Részletes leírás

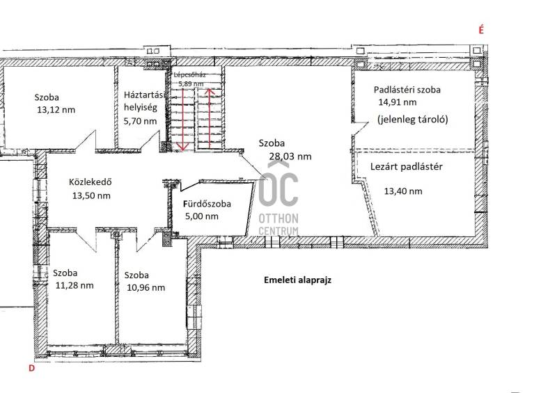
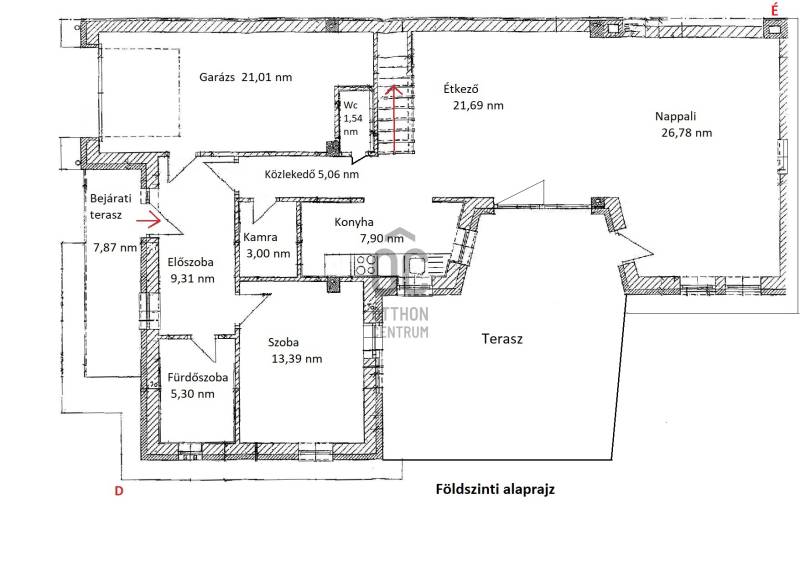
XVII. kerületben a méltán kedvelt Pesti úti lakóparkban kínálunk megvásárlásra egy nappali+ 5 szobás, sok extrával felszerelt kiváló állapotú családi házat 605 nm-es telekkel. A lakóépület 2002-ben épült, azóta a Tulajdonosa esztétikailag és műszakilag is felújította, így a mai igényeknek maximálisan megfelel. A ház belső elosztása kiváló, nagyobb létszámú családnak, két generációnak is kényelmes Otthona lehet. A földszinten a tágas előszobából nyílik a felújított fürdőszoba, egy nagy méretű szoba, ez az egység külön lakrészként is funkcionálhat. A garázsból közvetlenül a lakásba jutunk. A ház központi része a közel 50 nm-es, napfényben úszó ( DK-i tájolás) nagyobb belmagasságú nappali az étkezővel, innen közvetlen kertkapcsolatunk van a nagy méretű teraszon keresztül. A konyhában új, gépesített (Bosch elektromos főzőlap, mosogatógép, sütő, mikró), német minőségi konyhabútor található, mely a vételár részét képezi. A nappaliban lévő fatüzelésű kandalló gondoskodik télen a meghitt hangulatról. Az emeletre kényelmes lépcső vezet, ahol négy tágas hálószoba, egy újszerű fürdőszoba és egy háztartási helyiség kapott helyet. Itt egy padlástéri helyiség még beépíthető, tárolásra kiválóan alkalmas. A mai energiaérzékeny világban fontos, hogy a rezsi ne legyen magas. Az ingatlan 10 KW-os napelemrendszerrel rendelkezik (még 7 évig szaldós), így a villanyszámla nulla. Elektromos autó töltő lett kiépítve, 5 db inverteres hűtő-fűtő klíma lett felszerelve, a fűtést és a használati melegvizet egy fiatal kondenzációs kazán biztosítja. Az ablakokban az üvegezés nemrég lett cserélve, továbbá a belső ajtók is megújultak, modern, minőségi nyílászárók lettek beépítve. A hátsó, növényekkel körbeültetett intim kertben egy gépesített, épített medence került kialakításra napozóterasszal, a medence mérete 7,5 m x 4 m, hőszivattyú fűti a vizét. A medence mellett kapott helyet a 4 személyes finn szauna, továbbá kerti sütögető, bográcsozó is. A fűtött garázsban egy autó elfér, az előkertben további két autónak van hely, elektromos kapukon történik a bejutás, videós beléptető rendszer lett kialakítva. Az utcai kerítés cserélve lett porfestett alumínium kerítésre. A növényeket a 3 körös automata öntözőrendszer locsolja, a biztonságról riasztó gondoskodik. A környék kifejezetten szép, nívós, kulturált szomszédokkal, csendes kertvárosi környezet. Séta távolságra több bevásárlási lehetőség (Lidl, Spar), benzinkút, nagy játszótér, Home Centerben sok üzlet megtalálható, buszmegálló is rövid időn belül elérhető (97E, 202E).Ez az ingatlan a \"Felező csomag\" megbízási portfólióhoz tartozik. Részletek az Otthon Centrum weboldalán.

További adatok

Telekterület: 605 m2
Kert mérete: 605 m2
Erkély mérete: 45 m2
Felszereltség: -
Parkolás: -
Kilátás: -
Egyéb extrák:  
-

Hirdető adatai

Hirdető neve: Otthon Centrum
Kapcsolattartó: Sipos Zoltánné
Hirdető telefonszáma: +36 70 469 3031
Honlap: -

Üzenetet küldhet a hirdetőnek:
Az Ön neve:
Az Ön e-mail címe:
Üzenet: