Fejér megye, Ercsi


 

Hivatkozási szám: 3214790

Ingatlan adatai

Irányár: 64 900 000 Ft
Típus: ház
Kategória: eladó
Alapterület: 111 m2
Fűtés: egyéb
Állapota: -
Szobák száma: 6
Építés éve: 1997
Szintek száma: -

Részletes leírás

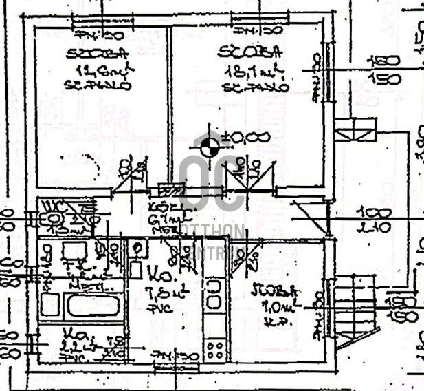
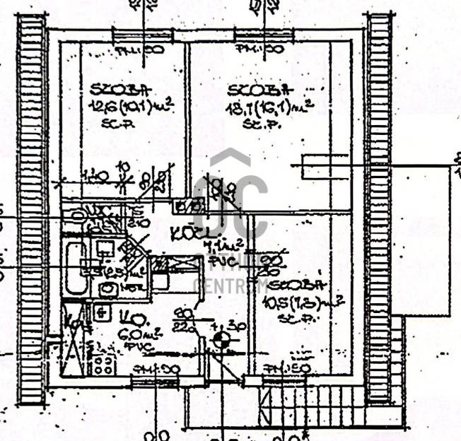
Ercsi rendezett részén kétgenerációs családi ház eladó- 1997- ben épült ingatlan - 683 nm -es telken épült, amely lehetőséget biztosít a szabadban való időtöltésre, kertészkedésre, vagy akár egy medence kialakítására is- a felső szint külön bejáratú, 50 nm, az alsó szint 61 nm- az alsó szint fedett teraszról közelíthető meg- az alsó és a tetőtéri szinten is 3 szoba, konyha, fürdőszoba található- fa nyílászárók, kamra, külön mellékhelyiség mindkét szinten- nagyon jó elrendezésű lakások, külön nyíló szobákkal- a telken sütögető, kocsibeálló található- a ház vasbeton födémes, szigetelt ingatlan Az ingatlan állapota átlagos, de lehetőséget ad arra, hogy saját ízlésére formálja, hiszen egy felújítás során személyes stílusát is belecsempészheti az otthonába.Hívjon, jöjjön, nézze meg!

További adatok

Telekterület: 683 m2
Kert mérete: 683 m2
Erkély mérete: 15 m2
Felszereltség: -
Parkolás: -
Kilátás: -
Egyéb extrák:  
-

Hirdető adatai

Hirdető neve: Otthon Centrum
Kapcsolattartó: Pleck Márta
Hirdető telefonszáma: +36 70 716 8896
Honlap: -

Üzenetet küldhet a hirdetőnek:
Az Ön neve:
Az Ön e-mail címe:
Üzenet: