Budapest, VI.kerület


 

Hivatkozási szám: 3214493

Ingatlan adatai

Irányár: 62 000 000 Ft
Típus: lakás (tégla)
Kategória: eladó
Alapterület: 34 m2
Fűtés: -
Állapota: -
Szobák száma: 1
Építés éve: 1930
Szintek száma: -

Részletes leírás

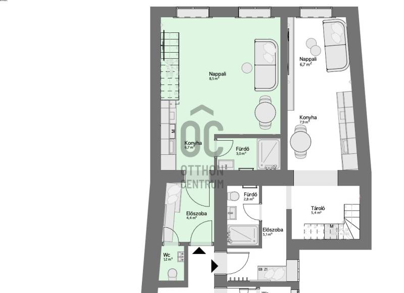
Egy karakteres, mégis modern otthon a Podmaniczky utca egyik klasszikus épületében. - Üdv Itthon!RÖVID ÖSSZEFOGLALÓEladó egy 34 m² nettó (47 m² bruttó), kétszintes, galériás kialakítású lakás Budapest VI. kerületében, a Podmaniczky utcában, egy 1930-as években épült polgári társasház 2. emeletén.Az ingatlan egy nagyobb lakás megosztásával került kialakításra, használati megosztási szerződéssel, közös előtérrel, azonban lakásonként külön főmérőkkel (víz, villany). A mérők kialakítását a tulajdonos biztosítja, így a rezsi fogyasztás teljesen szeparáltan mérhető.ELHELYEZKEDÉS – BELVÁROSI ÉLETRITMUSA Podmaniczky utca a VI. kerület egyik meghatározó utcája, néhány percre az Oktogontól és a Nyugati pályaudvartól.Kiváló közlekedés:- Nyugati pályaudvar – M3 metró, vasút, villamosok (4-6)- Oktogon – M1 metró- Andrássy út – 3-4 perc sétáraA belváros gyalogosan is kényelmesen bejárható, infrastruktúrája teljes: éttermek, kávézók, irodák, szolgáltatások és kulturális intézmények mind elérhető közelségben.KLASSZIKUS PESTI KARAKTERES ÉPÜLETAz 1930-as években épült, polgári stílusjegyeket viselő téglaépület a két világháború közötti pesti bérházépítészet elegáns arányait hordozza. Letisztult homlokzata, ritmusos ablakosztása és a belső udvar köré szervezett alaprajzi rendszere a korszak időtálló városi építészetét idézi.Az épület külső és belső homlokzata felújított, a lépcsőház karbantartott, a belső udvar rendezett és elegáns hangulatú – valódi klasszikus belvárosi miliőt teremtve.Lift nincs, azonban a második emelet kényelmesen megközelíthető. A ház lakóközössége kulturált és rendezett, amely méltó keretet ad a benne található lakásoknak.TÉR ÉS ARÁNY - BELSŐ KIALAKÍTÁSA 3,85 méteres belmagasság lehetővé tette, egy valóban jól használható, 1,7 méter belmagasságú, 13 m²-es galéria kialakítását, így az utcai nézetű, világos lakás egy élhető, tágas életteret biztosít. Az alaprajz építészetileg átgondolt: az alsó szinten a nappali-étkező és a konyha alkot egy jól szervezett közösségi teret, míg a felső galériaszint intim, szeparált hálórészként funkcionál.Jelenleg is zajlik a kivitelezés, amely hamarosan befejeződik, így az ingatlan rövid határidővel birtokba vehető. A felújítás során minőségi anyaghasználat jellemző, műanyag nyílászárók kerülnek beépítésre, a kialakítás modern, letisztult designt és szemléletet tükröz.Vételár tartalmazza:- beépített, gépesített konyhabútort,- teljes szaniter felszereltséget.A fűtés és hűtés klímás rendszerrel kerül kialakításra; a teljes gépészeti és elektromos előkészítés elkészül, azonban a klíma beltéri és kültéri egységei nem képezik a vételár részét.Az ingatlan egy nagyobb lakás megosztásával jött létre: a három kialakított lakás közös előtérből nyílik, ugyanakkor minden egységhez külön főmérők tartoznak. A közös költség megosztása tulajdoni hányad alapján történik, így a fenntartás arányos és átlátható.AJÁNLÁS – KINEK IDEÁLIS?Ez az ingatlan ideális választás mindazok számára, akik a belvárosi élet dinamizmusát szeretnék egy karakteres, nagypolgári hangulatú, mégis modern kialakítású otthonnal ötvözni. Fiataloknak különösen vonzó lehet a galériás térélmény és a városközpont közelsége, ahol minden gyalogosan elérhető.Ugyanakkor befektetési szempontból is kifejezetten erős lehetőség: a lokáció, a kétszintes kialakítás és a kulcsrakész állapot miatt az ingatlan könnyen és gyorsan bérbeadható. A belső VI. kerület évek óta stabil és keresett bérleti piac, amely hosszú távon is kiszámítható értékállóságot biztosít.Felkeltettük érdeklődését? Kérdései vannak? Várom hívását!-----------------------------------------------Díjmentes, bankfüggetlen hiteltanácsadással támogatjuk vevő ügyfeleinket a számukra legelőnyösebb finanszírozási döntések meghozatalában. Opcionálisan igénybe vehető kiegészítő szolgáltatásainkkal – mint ügyvédi közreműködés, energetikai tanúsítvány vagy villamos biztonsági felülvizsgálat – teljes körű szakmai támogatást nyújtunk az adásvétel folyamatának minden egyes lépésénél.-----------------------------------------------A hirdetésben szereplő információk tájékoztató jellegűek. A tévedés és az árváltoztatás jogát fenntartjuk. Az esetleges elírásokért és technikai hibákért felelősséget nem vállalunk.

További adatok

Telekterület: -
Kert mérete: -
Erkély mérete: -
Felszereltség: -
Parkolás: -
Kilátás: utcai
Egyéb extrák:  
-

Hirdető adatai

Hirdető neve: Otthon Centrum
Kapcsolattartó: Erdős Milán István
Hirdető telefonszáma: +36 70 461 9321
Honlap: -

Üzenetet küldhet a hirdetőnek:
Az Ön neve:
Az Ön e-mail címe:
Üzenet: