Hajdú-Bihar megye, Debrecen


 

Hivatkozási szám: 3213764

Ingatlan adatai

Irányár: 97 022 000 Ft
Típus: lakás (újépítésű)
Kategória: eladó
Alapterület: 62 m2
Fűtés: -
Állapota: új
Szobák száma: 3
Építés éve: 2027
Szintek száma: -

Részletes leírás

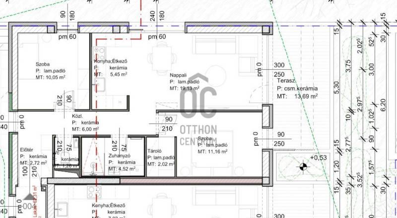
Projekt bemutatásaEXKLUZÍV ÚJ ÉPÍTÉSŰ LAKÁSOK DEBRECEN BELVÁROSÁBANPrémium életminőség | Időtálló érték | Bevezető ár: 1.399.000 Ft/m²ELŐÉRTÉKESÍTÉS ALATT EXTRA NM-ÁR KEDVEZMÉNYEKKEL. Standard felszereltségű lakásokra-hitelmentes konstrukció esetén, GOLD fizetési konstrukcióval ! 1.324.000 Ft/nm!!!Debrecen belvárosának közvetlen közelében, kisvárosias eleganciával övezett környezetben valósul meg a Társasház, ahol a modern városi luxus és a nyugodt, kifinomult életstílus találkozik.A saroktelken elhelyezkedő épület elhelyezkedése kivételes: könnyű városi hozzáférés, mégis nyugodt, rendezett környezet – ideális választás azok számára, akik nem kötnek kompromisszumot. Prémium lakáskoncepció•Garzon, nappali + 1 és nappali + 2 szobás lakások•Erkélyes és loggiás kialakítás•Lakásméretek: 43–66 m²•Földszinti lakások exkluzív, kizárólagos kertkapcsolattal, a hirdetési ár nem tartalmazza a zöldterület árát ( 50.000 Ft/m2)Letisztult alaprajzok, kiváló térérzet, természetes fény – minden részlet az élhető luxust szolgálja.Belső kert – privát városi nyugalomA társasház belső udvara kertépítészeti terv alapján kialakított, parkosított pihenőkertként és közösségi térként funkcionál, ahol a zöld környezet diszkrét hátteret ad a mindennapi feltöltődéshez. Diszkrét parkolási megoldások•Pinceszinten kialakított, korszerű mélygarázs•Saját teremgarázs parkolóhely vásárolható: 10.900.000 FtFelszini parkóló vásárlási lehetőség elektromos autó töltő kialakitással! Magas műszaki tartalom – valódi prémium•Hővisszanyerős gépészeti rendszer•Padlófűtés minden lakásban•Fan-coil hűtés a maximális komfortért•POROTHERM X-Therm Rapid falazat, 15 cm hőszigeteléssel•Egyedi gyártású, háromrétegű üvegezésű nyílászárók•Távirányítású, elektromos alumínium redőnyök rejtett tokban•Prémium szaniterek: RAVAK, HANSGROHE•Falba épített WC-tartályok•8 személyes, akadálymentes, átmenő lift a pinceszinttől a III. emeletig Személyre szabható luxus•3 felszereltségi szint: Standard | Médium | Prémium•Többféle fizetési konstrukció, melyekkel exkluzív kedvezmények érhetők elEz nem csupán egy lakás, hanem egy életstílus.Ideális választás azoknak, akik hosszú távon értékálló otthont vagy prémium befektetést keresnek Debrecen egyik legjobb lokációjában.Részletes információ, elérhető lakások és alaprajzok érdeklődés esetén.

További adatok

Telekterület: -
Kert mérete: -
Erkély mérete: 14 m2
Felszereltség: -
Parkolás: -
Kilátás: kertre néző
Egyéb extrák:  
-

Hirdető adatai

Hirdető neve: Otthon Centrum
Kapcsolattartó: Szaszala Zsolt
Hirdető telefonszáma: +36 70 469 3681
Honlap: -

Üzenetet küldhet a hirdetőnek:
Az Ön neve:
Az Ön e-mail címe:
Üzenet: