Pest megye, Dunaharaszti


 

Hivatkozási szám: 3213422

Ingatlan adatai

Irányár: 125 000 000 Ft
Típus: ház
Kategória: eladó
Alapterület: 109 m2
Fűtés: gáz (konvektor)
Állapota: -
Szobák száma: 3
Építés éve: 1970
Szintek száma: -

Részletes leírás

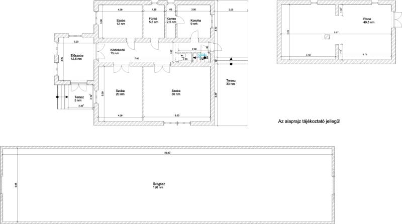
Eladó önálló családi ház nagy telekkel Dunaharasztiban!Dunaharaszti frekventált részén az Óvárosban nettó 108,5 nm alapterületű, tégla építésű, önálló családi házat kínálunk megvételre 1562 nm-es telken. A telek övezeti besorolása: LKe3.Mérete: 25 x 62 méter.Az ingatlan több lehetőséget rejt magában, korszerűsítés után kényelmes, élhető otthon lehet nagy telekkel. Elhelyezkedése miatt vállalkozások számára is kiváló lehetőség (régen kertészet működött itt). A ház beosztása:- előszoba 12,5 nm,- közlekedő 15 nm,- szoba 12 nm,- szoba 20 nm,- szoba 30 nm,- fürdőszoba 5,5 nm,- WC 1,0 nm,- kamra 2,5 nm,- konyha 9,0 nm,- padlásfeljáró 1,0 nm,--------------------------------- összesen: 108,5 nm + terasz 33 nm, + terasz 5,0 nm, + pince 49,5 nm.A udvarban található még, egy 198 nm-es üvegház, valamint egy tároló.A telken fúrt kút van.Minden közmű a házba bekötve.Az ingatlan elhelyezkedése kiváló, HÉV- megálló a közelben. Iskola, óvoda, bölcsöde gyalogosan néhány perc alatt elérhető.Amivel segítjük az Ön ingatlanvásárlását:- ingyenes hitelügyintézés,- jogi háttér,- földhivatali ügyintézés,- energetikai tanúsítvány,- a vevő számára az ingatlanközvetítés ingyenes.Irodánk 30 éves szakmai tapasztalattal áll ügyfelei rendelkezésére!Várom szíves megkeresését!

További adatok

Telekterület: 1 562 m2
Kert mérete: 1 562 m2
Erkély mérete: 38 m2
Felszereltség: -
Parkolás: -
Kilátás: kertre néző
Egyéb extrák:  
-

Hirdető adatai

Hirdető neve: GDN Ingatlanhálózat
Kapcsolattartó: Göbölyös Judit
Hirdető telefonszáma: +36-70-269-5029
Honlap: -

Üzenetet küldhet a hirdetőnek:
Az Ön neve:
Az Ön e-mail címe:
Üzenet: