Budapest, II.kerület


Felhévíz 

Hivatkozási szám: 3212965

Ingatlan adatai

Irányár: 195 000 000 Ft
Típus: lakás (tégla)
Kategória: eladó
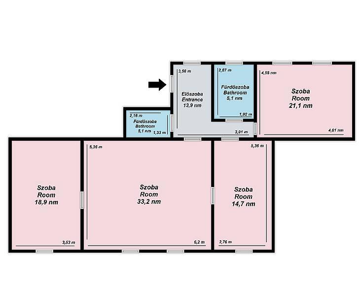
Alapterület: 102 m2
Fűtés: gáz (cirko)
Állapota: felújított
Szobák száma: 4
Építés éve: 1910
Szintek száma: -

Részletes leírás

Eladó a II. kerület egyik legkedveltebb részén, a Bem rakparton egy 102 m²-es, teljes körűen felújított, kiváló adottságokkal rendelkező lakás.Az ingatlan három szobás, a helyiségek egymás mellett, jól átgondolt elrendezéssel helyezkednek el. A lakás központi tere a tágas, amerikai konyhás nappali, amely világos, elegáns és tökéletesen alkalmas családi életre vagy vendégek fogadására. A nappaliból és kettő hálószobából lenyűgöző dunai panoráma tárul elénk: a hatalmas ablakokon keresztül nemcsak a Duna látványa élvezhető, hanem az ikonikus Országház épülete is teljes szépségében látható. A harmadik szoba csendes, belső udvarra néz, így ideális hálószobának vagy dolgozószobának.Keleti fekvésének köszönhetően a lakás rendkívül világos, a reggeli napfény természetes ragyogással tölti meg a tereket. A két fürdőszoba kényelmes és praktikus megoldást kínál akár család számára is. A felújítás során magas minőségű anyagokat és korszerű műszaki megoldásokat alkalmaztak, így az ingatlan azonnal költözhető, kompromisszumok nélkül.A rendezett társasház jó lakóközösséggel rendelkezik, belső homlokzata modernizált, ami tovább emeli az épület esztétikai színvonalát.A környék infrastruktúrája kiemelkedő: a Duna-part közelsége, a zöldterületek, bevásárlási lehetőségek és a kiváló tömegközlekedés mind hozzájárulnak a magas életminőséghez. A belváros néhány perc alatt elérhető.

További adatok

Telekterület: -
Kert mérete: -
Erkély mérete: -
Felszereltség: -
Parkolás: -
Kilátás: panorámás
Egyéb extrák:  
-

Hirdető adatai

Hirdető neve: MPD Hungary Kft.
Kapcsolattartó: La Cittá dell Acqua Kft.
Hirdető telefonszáma: +36704244380
Honlap: -

Üzenetet küldhet a hirdetőnek:
Az Ön neve:
Az Ön e-mail címe:
Üzenet: