Budapest, X.kerület


 

Hivatkozási szám: 3212949

Ingatlan adatai

Irányár: 62 900 000 Ft
Típus: lakás (panel)
Kategória: eladó
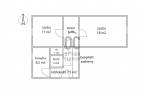
Alapterület: 53 m2
Fűtés: távfűtés
Állapota: felújítást igényel
Szobák száma: 2
Építés éve: 1975
Szintek száma: -

Részletes leírás

Eladó Budapest 10. kerületének egyik felkapott környékén az Árkád mögött a Gyakorló utcában elhelyezkedő, 53 négyzetméteres lakásunk. Remek választás lehet, ha egy olyan otthont keres, amelyben a családja kényelmesen élhet, ugyanakkor a város nyújtotta lehetőségeket is könnyen elérheti. Az ingatlan két szobával rendelkezik, így elegendő helyet biztosít a családi élethez, miközben a lakás felújítandó állapota lehetőséget kínál arra, hogy saját ízlésének megfelelően alakítsa ki az otthonát. A lakás távfűtéssel rendelkezik, amely egyedi mérés nélkül biztosítja a fűtést, így Önnek nem kell a fűtési költségekkel kapcsolatos aggályokkal foglalkoznia. A tehermentes ingatlan lehetőséget ad arra, hogy zökkenőmentesen birtokba vegye új otthonát, anélkül hogy bármiféle jogi akadályba ütközne. A környék csendes, biztonságos, ideális a gyermekek számára, akik szabadon játszhatnak a környéken, míg Ön nyugodtan pihenhet. A közlekedési csomópont közelsége lehetővé teszi, hogy könnyedén elérje a város többi részét, legyen szó akár munkába járásról, akár szabadidős programokról. A kitűnő közlekedési lehetőségeknek köszönhetően a tömegközlekedés gyors és kényelmes megoldást kínál, így a mindennapi életben nem lesznek akadályok. A közelben található boltok, iskolák és egyéb szolgáltatások pedig hozzájárulnak ahhoz, hogy a mindennapok zökkenőmentesen teljenek. Ez a lakás nem csupán egy ingatlan, hanem egy lehetőség arra, hogy megteremtse családja számára a tökéletes otthont. A Feslőrákos környéke folyamatosan fejlődik, ami a jövőbeli értéknövekedés szempontjából is kedvező lehet. Ne habozzon, hiszen az ilyen lehetőségek gyorsan elkelnek! Bármilyen kérdése merülne fel az ingatlannal vagy a vásárlási folyamattal kapcsolatban, bizalommal forduljon hozzánk. Szívesen állunk rendelkezésére, hogy segíthessünk Önnek a legjobb döntés meghozatalában.

További adatok

Telekterület: -
Kert mérete: -
Erkély mérete: -
Felszereltség: -
Parkolás: -
Kilátás: utcai
Egyéb extrák:  
-

Hirdető adatai

Hirdető neve: Otthon Centrum
Kapcsolattartó: Posváncz Katalin
Hirdető telefonszáma: +36 70 716 9671
Honlap: -

Üzenetet küldhet a hirdetőnek:
Az Ön neve:
Az Ön e-mail címe:
Üzenet: