Zala megye, Hévíz


 

Hivatkozási szám: 3212611

Ingatlan adatai

Irányár: 49 900 000 Ft
Típus: kereskedelmi/ipari ingatlan
Kategória: eladó
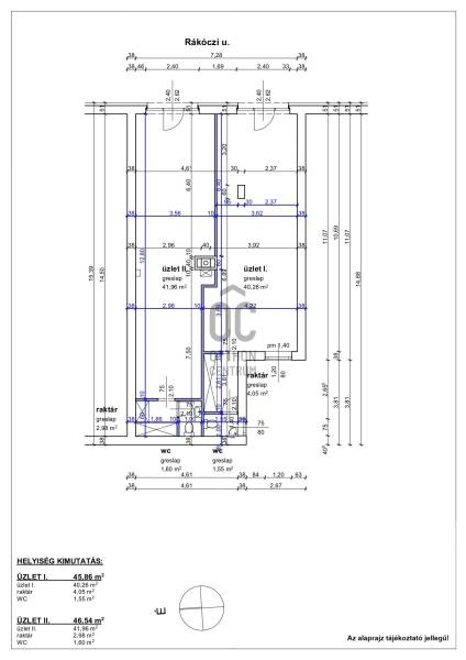
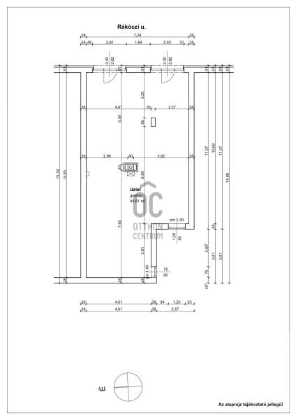
Alapterület: 46 m2
Fűtés: -
Állapota: -
Szobák száma: -
Építés éve: -
Szintek száma: -

Részletes leírás

Kiemelt megbízás irodánk kínálatában!Hévíz legfrekventáltabb részén, a sétálóutcában eladó egy 46 m²-es, földszinti, tégla építésű üzlethelyiség, mindössze pár perc sétára a Tófürdő bejáratától. Az ingatlan közvetlen utcai bejárattal rendelkezik, kiváló láthatósággal és átmenő forgalommal.A szomszédos, szintén 46 m²-es üzlethelyiség ugyancsak eladó, amely igény esetén könnyedén egybenyitható. Mindkettő külön, vagy akár egyben lakás céljára is átalakítható.A két üzlethelyiség együttes ára: 99,9 MFt.Mindkét egységhez minikonyha, valamint WC–zuhanyzó tartozik, így önállóan is jól hasznosíthatók.A fűtést gáz-cirkó kazán biztosítja, gazdaságos üzemeltetéssel.Az ingatlan kiemelkedő befektetési lehetőség, Hévíz egyik legkeresettebb lokációjában. A jelenlegi bérlők megtarthatók, így a befektetés akár azonnali hozamot biztosíthat, rövid megtérülési idővel.A közelben minden elérhető: üzletek, vendéglátóhelyek, szolgáltatások, valamint a város leglátogatottabb turisztikai pontjai.Ne hagyja ki ezt a ritka lehetőséget Hévíz egyik legjobb elhelyezkedésű ingatlanában!Az adatok kizárólag a megbízóink által rendelkezésünkre bocsátott információkon alapulnak.Fentiekre tekintettel, az adatok teljességéért, helyességéért és aktualitásáért nem vállalunk felelősséget.Az árváltozás, adatmódosítás és közbeni értékesítés jogát fenntartjuk, mindezekért jogi felelősséget nem áll módunkban vállalni.

További adatok

Telekterület: -
Kert mérete: -
Erkély mérete: -
Felszereltség: -
Parkolás: -
Kilátás: -
Egyéb extrák:  
-

Hirdető adatai

Hirdető neve: Otthon Centrum
Kapcsolattartó: Poldauf Róbert
Hirdető telefonszáma: +36 70 469 3266
Honlap: -

Üzenetet küldhet a hirdetőnek:
Az Ön neve:
Az Ön e-mail címe:
Üzenet: