Budapest, XVI.kerület


 

Hivatkozási szám: 3212598

Ingatlan adatai

Irányár: 255 000 000 Ft
Típus: ház
Kategória: eladó
Alapterület: 182 m2
Fűtés: gáz (cirko)
Állapota: új
Szobák száma: 5
Építés éve: 2026
Szintek száma: -

Részletes leírás

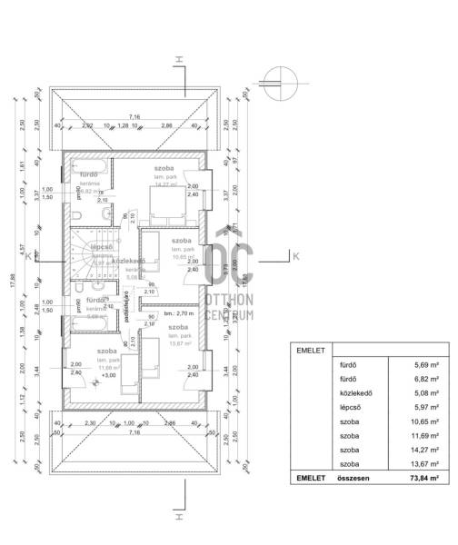
A 16. kerület kedvelt, kertvárosi részén újépítésű családi ház, referenciákkal rendelkező építtetőtől eladóA projekt folyamosan épült, várható kulcsrakész átadás 2026. nyara!De nézzük a részleteket!- 542 m2-es telek- 182 m2 nettó alapterületű, kétszintes ház- a földszinten hatalmas 54 m2-es amerikai konyhás nappali, egy mosdó és egy háztartási helyiség, valamint egy garázs és egy kerti tároló kapott helyett- az emeleten 4 halószoba, és két kádas fürdőszoba kerül kialakításra- magas műszaki tartalom, antracit cseréptető, gázcirkó, hűtő-fűtő klíma, 3 rétegű műanyag ablakok, 15 cm-es szigetelés- a belső nyílászárók, falszínek, burkolatok, szaniterek még választhatók!- az ár tartalmazza a tereprendezést, valamint a fa kerítés elkészítését isKiváló lokáció. Okatási intézmények, játszótér, park, szabadidős lehetőségek a közvetlen közelben!Bevásárlási lehetőség 5 perc alatt elérhető. Buszmegálló 5 percre, HÉV megálló 10 percre.Jöjjön, és nézze meg még ma! Kiváló lehetőség!Igény esetén bankfüggetlen szakemberünk ingyenes tanácsadással, ügyintézéssel áll rendelkezésére.

További adatok

Telekterület: 542 m2
Kert mérete: 542 m2
Erkély mérete: -
Felszereltség: -
Parkolás: -
Kilátás: -
Egyéb extrák:  
-

Hirdető adatai

Hirdető neve: Otthon Centrum
Kapcsolattartó: Bringye Viktória
Hirdető telefonszáma: +36 70 716 8186
Honlap: -

Üzenetet küldhet a hirdetőnek:
Az Ön neve:
Az Ön e-mail címe:
Üzenet: