Hajdú-Bihar megye, Debrecen


 

Hivatkozási szám: 3212323

Ingatlan adatai

Irányár: 54 500 000 Ft
Típus: lakás (tégla)
Kategória: eladó
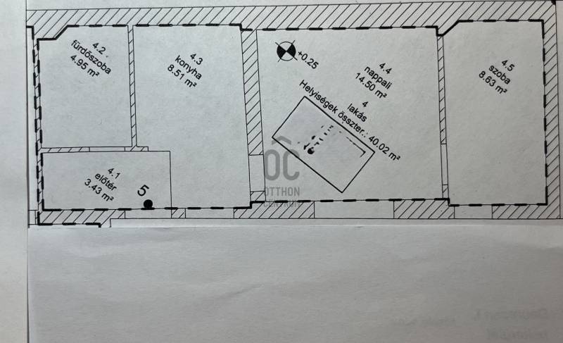
Alapterület: 40 m2
Fűtés: elektromos
Állapota: -
Szobák száma: 2
Építés éve: 1959
Szintek száma: -

Részletes leírás

Debrecen belvárosában, a Simonffy utca csendes, sétálóövezeten kívül eső részén eladó egy 40 m2-es, TÉGLA építésű, földszinti lakás.Az ingatlan pár éve teljeskörűen felújított: víz, villany, burkolatok és nyílászárók.Jó minőségű bútorokkal van berendezve, gépesített konyhával, elegáns nappalival és ízlésesen kialakított hálószobával rendelkezik. A vételár magában foglalja a lakás teljes BERENDEZÉSÉT, a beépített háztartási gépeket, kiegészítőket, valamint az udvari tárolóhelyiség (6 m2) árát is.Az udvarban 4 lakás található, társasházként működik, önálló helyrajzi számon, közösköltség nincs.Tartozik hozzá egy 12 m2-es teraszrész is.TEHERMENTES, AZONNAL KÖLTÖZHETŐ!! Az 5kW-os napelemnek és a hőszivattyús vízmelegítőnek köszönhetően a rezsi költségek minimálisak, gyakorlatilag csak a víz- és a szemétszállítási díjakkal kell számolni.Tömegközlekedéssel könnyen megközelíthető, a parkolás ingyenes a közeli utcákban - a DV Parking rendszerében történő regisztráció után. A lakástól nem messze bevásárlóközpont, számos üzlet, pékség, edzőterem, fodrász, stb. található. A főtér és a városközpont kb. 5 perc sétával elérhető.Ideális választás fiatal párok és idősek számára egyaránt. ÉRTÉKÁLLÓ, remek befektetés is egyben a leendő tulajdonos számára.Megtekintéssel és bővebb információval kapcsolatban hívjon, szívesen válaszolok!!

További adatok

Telekterület: -
Kert mérete: -
Erkély mérete: 12 m2
Felszereltség: -
Parkolás: -
Kilátás: udvari
Egyéb extrák:  
-

Hirdető adatai

Hirdető neve: Otthon Centrum
Kapcsolattartó: Aradi Andrea
Hirdető telefonszáma: +36 70 412 5466
Honlap: -

Üzenetet küldhet a hirdetőnek:
Az Ön neve:
Az Ön e-mail címe:
Üzenet: