Budapest, XVII.kerület


XVII. kerület, Szőlőliget Ökopark 

Hivatkozási szám: 3211282

Ingatlan adatai

Irányár: 158 000 000 Ft
Típus: ház
Kategória: eladó
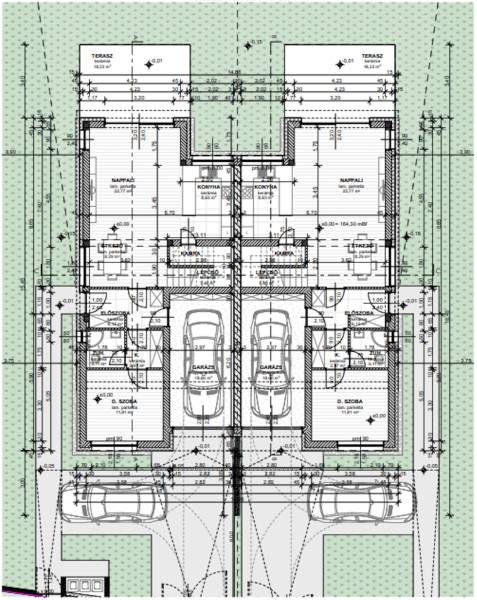
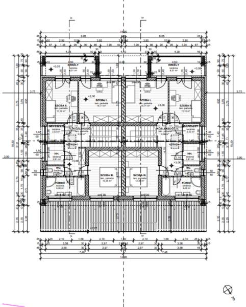
Alapterület: 149 m2
Fűtés: -
Állapota: új
Szobák száma: 4
Építés éve: 2024
Szintek száma: -

Részletes leírás

AZONNAL KÖLTÖZHETŐ!RÁKOSLIGETEN , 16. ÉS 17. KERÜLET HATÁRÁBAN A SZŐLŐPLIGET ÖKO LAKÓPARKBAN NAGYMULTÚ BERUHÁZÓTÓL MAGAS SZINVONALON MEGÉPÍTETT MAGAS MŰSZAKI TARTALOMMAL RENDELKEZŐ ÖKO TUDATOS NETTO 125 NM+ 24 NM TERASZOS HÁZ ELADÓ. Az új családi otthonok kiváló közlekedés mellett de még is csendes környezetben kimagasló infrastruktúra mellett (új óvoda, bölcsőde, orvosi rendelő, étterem, egészségcentrum), az új lakók számára kiváló életteret ad!A modern, de mégis kívülről hagyományosabb stílusú ikerház nagyméretű telkeken épül fel.Kialakítása kényelmes egy nagyobb család számára is,- alsó szinten külön konyha nappali étkező, zuhanyzós fürdőszoba, előszoba, garázs,- emeleten 3 tágas hálószoba, a szülői szobából saját gardrób szoba nyílik valamint egy tágas terasz, nagyméretű fürdőszoba, valamint külön wc,A mai szigorú építési követelményeknek megfelelően épülő házak teljesítik a 25%-os megújuló energetikai követelményeket.- A főfali falazat 15 cm-es Drywit hőszigetelő rendszerrel szigetelt- 3 rétegű üvegezésű műanyag nyílászárók- Hőszivattyús fűtési rendszer- Padló fűtés- Mennyezet hűtés-fűtés- Öko csomag: okos otthon előkészítés, napelem, hőcserélős szellőztető rendszer előkészítés ,- egyéb kényelmi extrák,- Kiépített riasztó rendszer- Elektromosan mozgatható garázs és kert kapukA ház teljes kulcsra kész állapotban van, igényes burkolatokkal szaniterekkel , beltéri ajtókkal.Kedves érdeklődő!Amennyiben felkeltettem érdeklődését, további műszaki információért, segítség nyújtásért, kérem keressen bizalommal, akár a hétvégén is!Hiteligényléssel kapcsolatosan kiemelt banki, kapcsolatunk révén, ügyfeleink számára, általánosságban a piaci lehetőségeknél levő hitelkonstrukcióknál, sokkal kedvezőbb megoldást találunk, melyet az ingatlanbiztosítással, és jogi képviselettel együttesen is biztosítunk.

További adatok

Telekterület: 504 m2
Kert mérete: 504 m2
Erkély mérete: -
Felszereltség: -
Parkolás: -
Kilátás: -
Egyéb extrák:  
-

Hirdető adatai

Hirdető neve: Marianna Osztermayer
Kapcsolattartó: Osztermayer Marianna
Hirdető telefonszáma: 06306132050
Honlap: -

Üzenetet küldhet a hirdetőnek:
Az Ön neve:
Az Ön e-mail címe:
Üzenet: