Veszprém megye, Berhida


 

Hivatkozási szám: 3210840

Ingatlan adatai

Irányár: 54 900 000 Ft
Típus: ház
Kategória: eladó
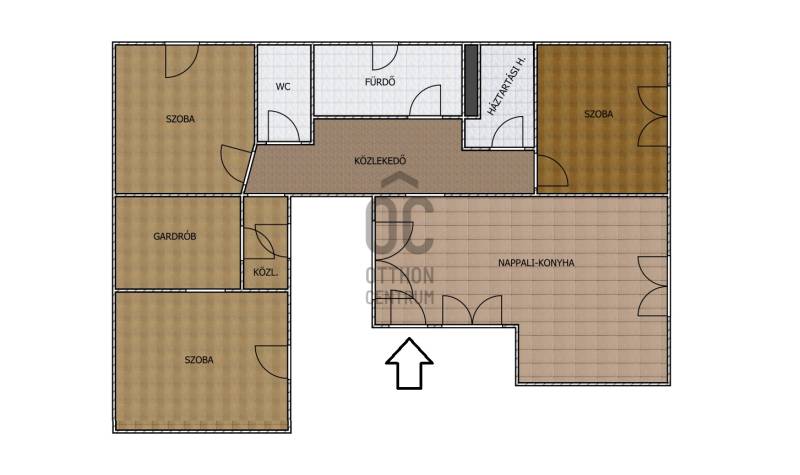
Alapterület: 104 m2
Fűtés: -
Állapota: -
Szobák száma: 3
Építés éve: 1950
Szintek száma: -

Részletes leírás

Berhidán ELADÓ, részben felújított, 3 SZOBÁS CSALÁDI HÁZ 403 m2 TELEKKELIngatlan jellemzői:- 403 m2-es telekre épült- vegyes falazat: tégla és vályog- a tégla részen 10 cm homlokzati szigetelés- fagerendás födémszerkezet- ácsolt fa tetőszerkezet, betoncserép fedéssel ( a tetőszerkezet felújítása 2025-ben történt)- új villany, víz és csatornahálózat- gázcsonk a telken- meleg vizet villanybojler szolgáltat- műanyag hőszigetelt nyílászárók- esztétikus beltéri ajtók kerültek a régiek helyéreElsősorban azoknak ajánlanám, akik szeretnének egy világos modern házat és nem akarnak a felújítással bajlódni. Itt csak a telek rendezése és a ház utolsó simitásai amivel foglalkoznia kell.2 gyermekes CSOK + -ra és Otthon Start hitelre alkalmas a ház!Ha további információk érdeklik vagy megtekintené a házat, hívjon.Ha a vásárláshoz a jelenlegi ingatlana eladására van szükség, akkor abban is szívesen együttműködöm Önnel!Amennyiben hitelre van szüksége, az Otthon Centrum az ország egyik legnagyobb és legmegbízhatóbb hitelközvetítőjeként, teljes körű és díjmentes hitel ügyintézéssel áll rendelkezésére.Kérje személyre szabott ajánlatunkat!

További adatok

Telekterület: 403 m2
Kert mérete: 403 m2
Erkély mérete: -
Felszereltség: -
Parkolás: -
Kilátás: -
Egyéb extrák:  
-

Hirdető adatai

Hirdető neve: Otthon Centrum
Kapcsolattartó: Balogh Róbert
Hirdető telefonszáma: +36 70 469 3626
Honlap: -

Üzenetet küldhet a hirdetőnek:
Az Ön neve:
Az Ön e-mail címe:
Üzenet: