Somogy megye, Siófok


 

Hivatkozási szám: 3210502

Ingatlan adatai

Irányár: 87 000 000 Ft
Típus: ház
Kategória: eladó
Alapterület: 71 m2
Fűtés: -
Állapota: új
Szobák száma: 4
Építés éve: 2026
Szintek száma: -

Részletes leírás

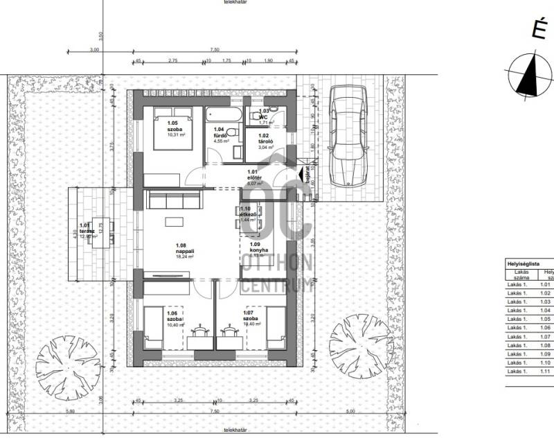
Siófok, Ezüstpart közelében - Egy új ház azoknak, akik nem szeretnek zajban élni.Eladásra kínálunk egy új építésű, földszintes, önálló családi házat Siófokon, az Ezüstpart szabadstrandtól 1000 méterre. Az ingatlan kulcsrakészen kerül átadásra, a kivitelezés minden részlete a hosszú távú minőségre és az alacsony üzemeltetési költségekre lett optimalizálva.A 61–71 m² alapterületű házak átgondolt alaprajzzal készülnek: Nappali–amerikai konyha, 2–3 hálószoba, fürdőszoba, külön WC, terasz. Földszintes kialakítás, természetes térarányok, élhető méretek.A szerkezet 30 cm-es Porotherm téglából épül, korszerű hőszigeteléssel, háromrétegű nyílászárókkal. A fűtést és a használati melegvizet levegő–víz hőszivattyú biztosítja, padlófűtéssel. A burkolatok és szaniterek meghatározott árkategórián belül választhatók.Az ár tartalmazza a 3D kerítést, a tereprendezést és a felszíni gépkocsi-beállót.A projektben összesen 12 önálló ház épül, külön bejárattal és saját kerítéssel. A főbb építőanyagok már rendelkezésre állnak. Várható átadás: 2026. második negyedév.A környezet csendes, zöld, nem a főút és nem a Balaton felőli oldalon található. A Balaton 15 perc sétával elérhető, a mindennapi infrastruktúra néhány percre van.Ez az ingatlan nem látványos ígéretekkel operál.Egyszerűen jól lesz megépítve.Tervdokumentáció és részletes műszaki tartalom kérhető.Projekt bemutatásaSiófok, Ezüstpart közelében – ÚJ, FÖLDSZINTES otthon CSENDES, ZÖLD környezetben.Olyan házat keres, ahol a NYUGALOM és a PRAKTIKUM találkozik?Eladásra kínálunk Siófokon, az Ezüstpart szabadstrandtól mindössze 1000 méterre egy KULCSRAKÉSZ, önálló, földszintes családi házat.A kivitelezés fókusza az IDŐTÁLLÓ MINŐSÉG és az ALACSONY ÜZEMELTETÉSI KÖLTSÉG – felesleges ígéretek nélkül.Átgondolt elrendezés, ÉLHETŐ méretek: 61–71 m² alapterület.Nappali–amerikai konyha, 2–3 hálószoba, fürdőszoba, KÜLÖN WC, TERASZ.A LÉPCSŐMENTES kialakítás és a természetes térarányok KÉNYELMES mindennapokat biztosítanak az idősebb korosztály számára is.Megbízható műszaki tartalom:- 30 cm POROTHERM falazat, KORSZERŰ HŐSZIGETELÉS- HÁROMRÉTEGŰ NYÍLÁSZÁRÓK a jobb hő- és hangkomfortért- LEVEGŐ–VÍZ HŐSZIVATTYÚ és PADLÓFŰTÉS – ENERGIAHATÉKONY működés- Burkolatok és szaniterek VÁLASZTHATÓK meghatározott árkategórián belül- Az ár tartalmazza:3D KERÍTÉS, TEREPRENDEZÉS, FELSZÍNI GÉPKOCSI-BEÁLLÓProjektinformációk:Összesen 12 ÖNÁLLÓ HÁZ épül, mindegyik KÜLÖN BEJÁRATTAL és SAJÁT KERÍTÉSSEL.A főbb építőanyagok rendelkezésre állnak.Várható átadás: 2026. MÁSODIK NEGYEDÉV.Elhelyezkedés:CSENDES, ZÖLD utcák, nem a főút és nem a Balaton felőli oldal.A Balaton 15 perc SÉTA, a mindennapi INFRASTRUKTÚRA néhány percre elérhető.„Ez az ingatlan nem látványos ígéretekkel operál. Egyszerűen jól lesz megépítve.”Tervdokumentáció és részletes műszaki tartalom kérhető.#siofok #ezustpart_kozeleben #uj_haz #foldszintes #onallo_csaladi_haz #kulcsrakeszen #eladohaz #siofok #eladohazsiofok#fokihegy

További adatok

Telekterület: 300 m2
Kert mérete: 300 m2
Erkély mérete: 13 m2
Felszereltség: -
Parkolás: -
Kilátás: -
Egyéb extrák:  
-

Hirdető adatai

Hirdető neve: Otthon Centrum
Kapcsolattartó: Bezzeg Nikoletta
Hirdető telefonszáma: +36 70 716 8431
Honlap: -

Üzenetet küldhet a hirdetőnek:
Az Ön neve:
Az Ön e-mail címe:
Üzenet: