Budapest, VIII.kerület


 

Hivatkozási szám: 3210313

Ingatlan adatai

Irányár: 975 148 Ft/hó
Típus: iroda
Kategória: kiadó
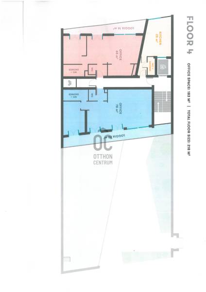
Alapterület: 183 m2
Fűtés: -
Állapota: -
Szobák száma: -
Építés éve: 2020
Szintek száma: -

Részletes leírás

KIADÓ IRODÁK A SALÉTROM UTCÁBAN!A KÖRNYÉK:Felkapott, mert izgalmas és rengeteg új lehetőséget tartogat, minden karníújtásnyira!AZ ÉPÜLET:Az építészeti díjas homlokzat mögött egy 6 szintes megújuló energiaforrásokkal működő, korszerűsített ipari épület található, ahol energiahatékony üzemelés, hőszivattyú rendszer és geoáram működik.SZOLGÁLTATÁSOK:Rugalmasan, egyéni igények szerintADOTTSÁGOK:zöldházokos épületintelligens épületüzemeltetés / bérlői mobilappzuhanyzókbiciklitárolóteraszok és loggiáktetőteraszkonyhák és étkezőktárgyalók és telefonszobákmélygarázsRemote concierge szolgáltatásworkshop szobák és telefonfülkékLEHETŐSÉGEK:Dinamikus és rugalmas munkakörnyezet, standard, szolgáltatott és flexibilis bérleti konstrukciókTöbb funkciót kielégítő terek a különböző szintekenSokszínű nemzetközi közösség(korábbi és jelenlegi bérlők a teljesség igénye nélkül: Wolt Magyarország, Mastercard, Nespresso, Morselli, Rollbar, Artmagazin, Distinction, Feastfox, Kitchen Budapest, Intenset, Madhouse, OXO Labs, Makifood, Oktogon Ventures)Csapat- és skype szobák, tárgyalók, rendezvénytérBelső udvar és teraszokHibrid irodamegoldásokVilágos, benapozott, izgalmas terekKÖZLEKEDÉS:Tömegközlekedési eszközök: 4-6, 99 -es villamos, M4-es metróKerékpár tárolás a belső udvarban lehetséges----------------------------------------------------------------------------------------------------------------KIADÓ IRODÁK:KIADÓ IRODÁK:FÖLDSZINT 220 m2ebben:140 m2-es rendezvény tér/közösségi tér/iroda80 m2-es rendezvény tér/közösségi tér/iroda12 m2 konyha2 mosdóraktárA bérleti díjon felül fizetendő: üzemeltetési díj + közüzemi átalány díj: 1760 Euro/hóELSŐ SZINT 277 m2ebben:190 m2 egylégterű rendezvény tér/közösségi tér/iroda3 önálló iroda2 mosdóraktárA bérleti díjon felül fizetendő: Üzemeltetési díj + közüzemi átalány díj: 2215 Euro/hóMÁSODIK SZINT 183 m2ebben:78 m2 iroda+konyha65 m2 iroda25 m2 iroda3 mosdó zuhanyzóval2 külön WCA bérleti díjon felül fizetendő: Üzemeltetési díj + közüzemi átalány díj: 1463 Euro/hóHARMADIK SZINT 183 m2ebben:78 m2 iroda+konyha65 m2 iroda25 m2 konyha3 mosdó zuhannyal2 külön WCA bérleti díjon felül fizetendő: Üzemeltetési díj + közüzemi átalány díj: 1463 Euro/hóNEGYEDIK SZINT 183 m278 m2 iroda+konyha65 m2 iroda25 m2 konyha3 mosdó zuhannyal2 külön WCA bérleti díjon felül fizetendő: Üzemeltetési díj + közüzemi átalány díj: 1463 Euro/hóBÉRLÉSI FELTÉTELEK:Óvadék: 3 havi bruttó teljes szolgáltatási díjBérleti idő: minimum 1 év

További adatok

Telekterület: -
Kert mérete: -
Erkély mérete: -
Felszereltség: -
Parkolás: -
Kilátás: -
Egyéb extrák:  
-

Hirdető adatai

Hirdető neve: Otthon Centrum
Kapcsolattartó: Váradi Zsófia
Hirdető telefonszáma: +36 70 388 5631
Honlap: -

Üzenetet küldhet a hirdetőnek:
Az Ön neve:
Az Ön e-mail címe:
Üzenet: