Pest megye, Cegléd


 

Hivatkozási szám: 3210078

Ingatlan adatai

Irányár: 115 000 000 Ft
Típus: ház
Kategória: eladó
Alapterület: 210 m2
Fűtés: gáz (cirko)
Állapota: -
Szobák száma: 6
Építés éve: 1988
Szintek száma: -

Részletes leírás

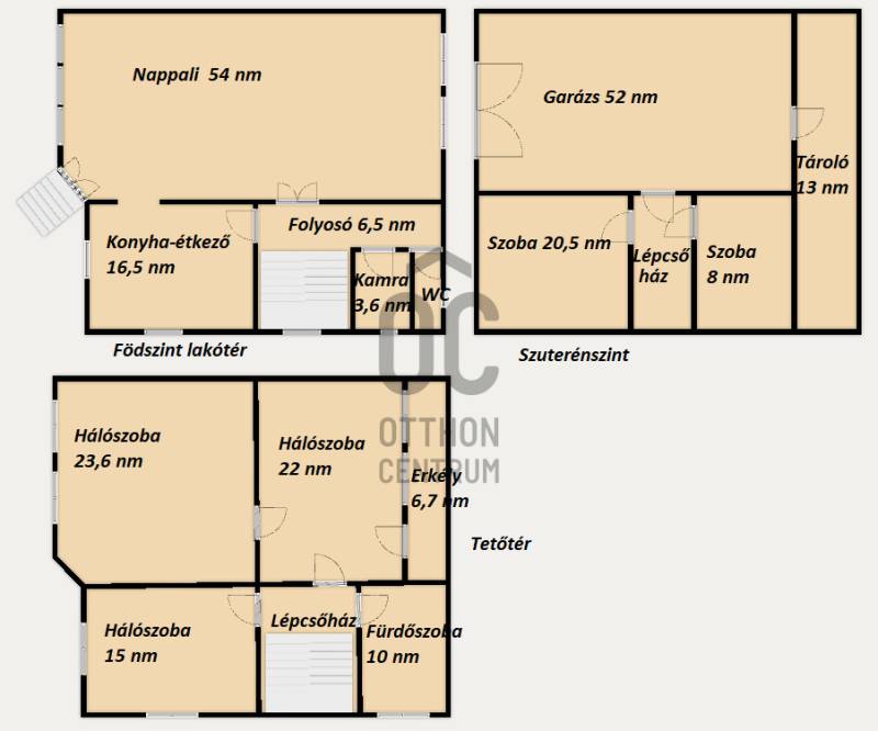
Cegléd szívében, ahol a nyugalom és a modern életstílus találkozik keresi új lakóit egy három szintes, két generációssá alakítható ingatlan! Ez a 198 nm hasznos lakóterületű ház ideális választás lehet nagy családok és befektetők számára egyaránt. A 503 nm-es telken elhelyezkedő ingatlan 6 szobával és 1 fürdőszobával rendelkezik, amely tágas teret kínál a mindennapi élethez. Az ingatlan jó állapotban van, így azonnal költözhető, a gáz (cirko) fűtés és klímaberendezés pedig a kényelmes hőmérsékletről gondoskodik a legmelegebb nyári napokon is. A házhoz tartozik egy 6.8 nm-es erkély, mely ideális helyszín a reggeli kávé elfogyasztásához vagy egy kellemes esti pihenéshez. A garázsban két autó kényelmesen elfér, így a parkolás soha nem lesz probléma. Az ingatlan elhelyezkedése kiemelkedő, hiszen Cegléd városának csendes, mégis jól megközelíthető részén található, ahol a természet közelsége és a városi élet előnyei harmonikusan egyesülnek. A tömegközlekedési lehetőségek is kiválóak, hiszen, könnyedén elérheti Budapestet a Nyugat-Szolnok vasútvonal által. Ingatlan leírás:-tégla falazat, cserepes tető fedés,-198 nm hasznos lakótér,-szuterén szinten: 2 szoba, tároló, két beállásos garázs,-magas földszinten: tágas nappali, tágas konyha, kamra, illem helyiség, lépcsőház,-tetőtér: 3 hálószoba, tágas fürdőszoba,-gázcirkóval, vegyes kazánnal ellátott radiátoros fűtés,-cserépkályha alternatív fűtés megoldásnak,-503 nm-es körbekerített porta, Ha bármilyen kérdése van, ne habozzon kapcsolatba lépni velem! Szívesen segítek Önnek az ingatlan megtekintésében, és válaszolok minden felmerülő kérdésére. Az ingatlanpiac dinamikusan változik, ezért érdemes minél előbb lépnie!Ha hitelre van szüksége, irodánkban teljes körű ügyintézéssel, ingyenes és bankfüggetlen hitelközvetítéssel várjuk.A hirdetésben szereplő információk a megbízótól kapott adatok alapján készültek, pontosságukért felelősséget nem vállalunk!

További adatok

Telekterület: 503 m2
Kert mérete: 503 m2
Erkély mérete: 7 m2
Felszereltség: -
Parkolás: -
Kilátás: -
Egyéb extrák:  
-

Hirdető adatai

Hirdető neve: Otthon Centrum
Kapcsolattartó: Kosztolányiné Nagy Zsuzsanna
Hirdető telefonszáma: +36 70 461 9311
Honlap: -

Üzenetet küldhet a hirdetőnek:
Az Ön neve:
Az Ön e-mail címe:
Üzenet: