Somogy megye, Igal


 

Hivatkozási szám: 3209797

Ingatlan adatai

Irányár: 52 500 000 Ft
Típus: nyaraló
Kategória: eladó
Alapterület: 133 m2
Fűtés: gáz (konvektor)
Állapota: -
Szobák száma: 5
Építés éve: 1970
Szintek száma: -

Részletes leírás

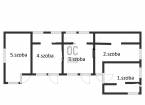
Termálfürdője miatt közkedvelt Igal településen üdültetésre alkalmas apartmantház 4 külön bejáratú apartmannal , duplagarázzsal és gyümölcsfákkal beültetett kerttel 52,5 millió forintért eladó. Az ingatlan alapterülete 280 négyzetméter, a telek mérete pedig 1878m2. Az udvarban kerti pavilon, tároló helységek és parkolóhelyek vannak. A tulajdonos eladja szülei megvalósult álmát Igalban, 200 méterre a gyógyfürdőtől!Ez egy 280 m² alapterületű apartmanház, 4 külön bejáratú, a teraszról megközelíthető, berendezett apartmannal, dupla garázzsal, hatalmas terasszal, bútorozva, gázfűtéssel (a tetőtér beépítésének lehetőségével), 1848 m²-es telekkel, hatalmas gyümölcsös kerttel (még egy további ház építésére is alkalmas), különálló kis házzal, pincével, raktárhelyiségekkel, pavilonnal.Ha szeretné tovább folytatni a vállalkozást, akkor ezt egy festés után megteheti, mivel az összes bútor és berendezés az árban benne van! Ez az ingatlan több generáció számára is alkalmas. Fűthető és bútorozott apartmanok (szoba + zuhanyzó + WC + konyha), kerti bútorok, dupla elektromos garázskapu. Szeretnénk, ha jó kezekbe kerülne, mert a régi visszatérő vendégek évek óta nálunk keresnek szállást.Igal település Kaposvár közelében van, és újonnan felújított híres termálfürdője miatt közkedvelt a belföldi és német-osztrák turisták körében, akik közül sokan rendelkeznek saját nyaralóval a faluban. A településen minden szükséges infrastruktúra (üzletek, posta, vendéglátó egységek, stb) rendelkezésre áll, ami a nyugodt pihenéshez vagy tartós ott lakáshoz szükséges.DEUTSCHIn Thermal Stadt Igal Apartmanhaus für 129.900 €Der Inhaber verkauft den verwirklichten Traum von seinen Eltern in Igal, 200 m vom Kurbad entfernt!Es handelt sich um ein Apartmenthaus mit einer Wohnfläche von 280 m², 4 separat zugänglichen, von der Terrasse aus begehbaren, ausgestatteten Apartments, einer Doppelgarage, einer riesigen Terrasse, möbliert, mit Gasheizung (mit Möglichkeit zum Ausbau des Dachgeschosses) 1848 m² großes Grundstück, riesiger Garten mit Obstbäumen (sogar für den Bau eines weiteren Hauses geeignet), separates kleines Haus, Keller, Lagerräume, Pavillon Wenn Sie den Betrieb so weiterführen möchten, können Sie dies nach einem Anstrich tun, da alle Möbel und Ausstattungen im Preis inbegriffen sind!Diese Immobilie ist für mehrere Generationen geeignet. Beheizbare und möblierte Apartments (Zimmer + Dusche + WC + Küche), Gartenmöbel, doppelte elektrische Garagentür. Wir möchten, dass sie in gute Hände kommt, die alten Gäste suchen eine Unterkunft Die Gemeinde Igal liegt in der Nähe von Kaposvár und ist aufgrund ihres neu renovierten berühmten Thermalbades bei inländischen und deutschen-österreichischen Touristen sehr beliebt, von denen viele ein eigenes Ferienhaus im Dorf besitzen. In der Gemeinde sind alle notwendigen Infrastrukturen (Geschäfte, Post, Gastronomiebetriebe usw.) vorhanden, die für eine ruhige Erholung oder einen dauerhaften Aufenthalt notwendig sind.

További adatok

Telekterület: 1 878 m2
Kert mérete: 1 878 m2
Erkély mérete: -
Felszereltség: -
Parkolás: -
Kilátás: -
Egyéb extrák:  
-

Hirdető adatai

Hirdető neve: Otthon Centrum
Kapcsolattartó: Kling Josef
Hirdető telefonszáma: +36 70 412 3441
Honlap: -

Üzenetet küldhet a hirdetőnek:
Az Ön neve:
Az Ön e-mail címe:
Üzenet: