Somogy megye, Fonyód


 

Hivatkozási szám: 3208159

Ingatlan adatai

Irányár: 92 000 000 Ft
Típus: lakás (újépítésű)
Kategória: eladó
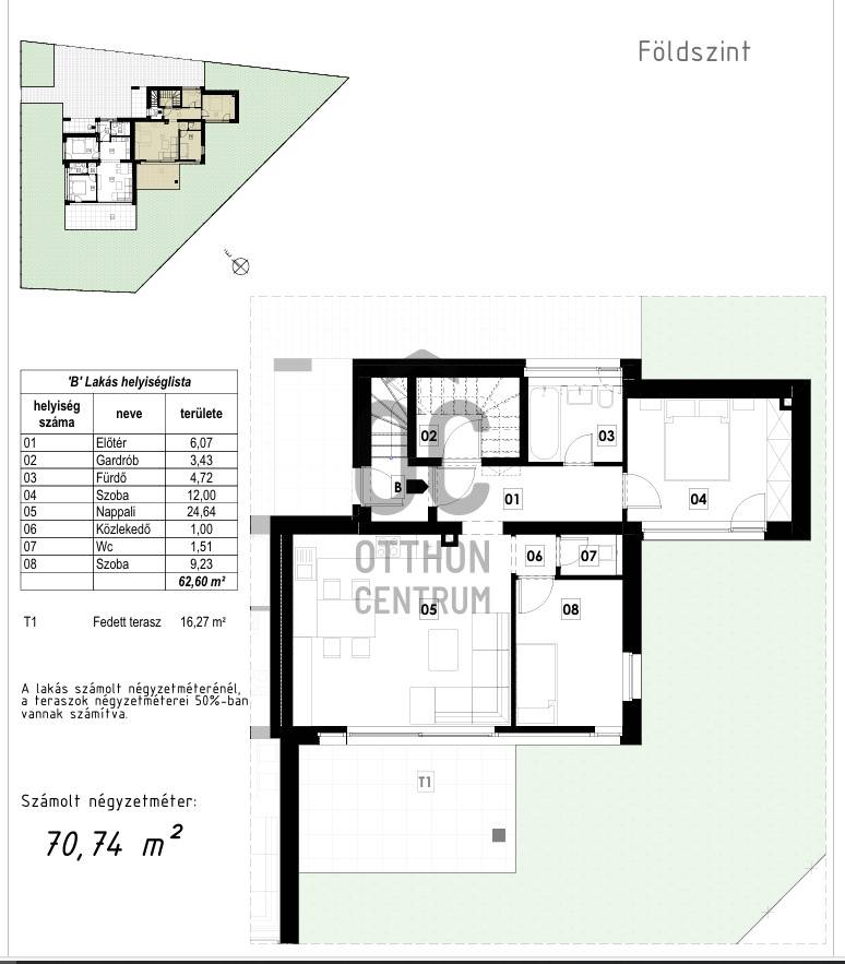
Alapterület: 71 m2
Fűtés: -
Állapota: új
Szobák száma: 3
Építés éve: 2025
Szintek száma: -

Részletes leírás

A Panoráma Lakópark egyik földszinti 3 szobás lakását kínáljuk megvételre.A délkeleti tájolású lakás hatalmas terasszal, zöldövezetre néző panorámával rendelkezik.A 4 lakásos épület téglából készül, grafitos hőszigeteléssel a mai kor előírásainak megfelelően.A fűtés korszerű hőszivattyúval lesz megoldva.Az ingatlan átadására várhatóan 2026. I. negyedévében kerül sor.Akár saját részre, akár befektetésnek kiválóan alkalmas.Fonyód a Balaton déli partjának kilátója, csodás panorámával az északi part hegyeire.Fejlett infrastruktúrája minden szolgáltatást elérhetővé tesz.Kiváló közlekedése, kikötője miatt rendkívül népszerű üdülőhely és turistaközpont.Jöjjön és szeressen bele ebbe a kivételes helyen fekvő ingatlanba.Előzetes egyeztetéssel rugalmasan megtekinthető.

További adatok

Telekterület: -
Kert mérete: -
Erkély mérete: 16 m2
Felszereltség: -
Parkolás: -
Kilátás: kertre néző
Egyéb extrák:  
-

Hirdető adatai

Hirdető neve: Otthon Centrum
Kapcsolattartó: Tóth Szilveszter
Hirdető telefonszáma: +36 70 388 5531
Honlap: -

Üzenetet küldhet a hirdetőnek:
Az Ön neve:
Az Ön e-mail címe:
Üzenet: