Pest megye, Szigetszentmiklós


 

Hivatkozási szám: 3207828

Ingatlan adatai

Irányár: 723 660 000 Ft
Típus: iroda
Kategória: eladó
Alapterület: 1 100 m2
Fűtés: -
Állapota: -
Szobák száma: -
Építés éve: -
Szintek száma: -

Részletes leírás

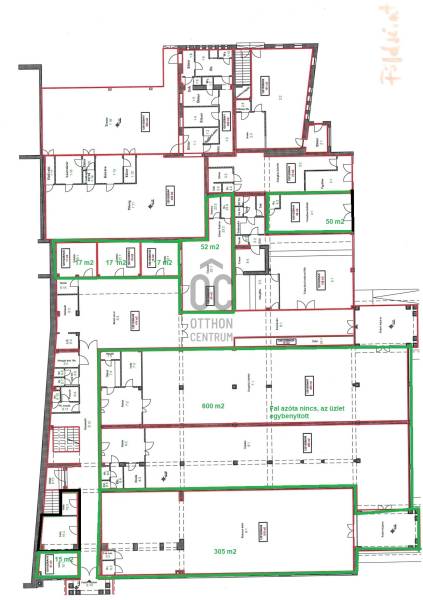
Szigetszentmiklós a fővárostól mindössze néhány kilométerre, a Csepel-sziget északi részén található, dinamikusan fejlődő város. Lakossága elérte a 40.000 főt. A város Budapest XXI. Kerületével határos és az M0 legforgalmasabb, déli szakasza mellett fekszik. A városban számos bevásárlási lehetőség, iskola, óvoda, sport- és kulturális program biztosítja a kényelmes mindennapokatAz ingatlan egyik legnagyobb előnye, hogy közvetlenül a H6-os HÉV megállója mellett található, amely jelentős forgalmat generál az üzletház számára . Emellett még fontos adottsága az ingatlannak, hogy a város főútján található, így jól megközelíthető, könnyen megtalálható és látható. A szigetszentmiklósiak egy része és a szigethalmi lakosok többsége ezen az úton közlekedik az M0 és Budapest felé.Az eladásra kínált befektetési ingatlan egy üzletközpont 26,3%-a. A két legnagyobb üzlet egy népszerű használtruha-kereskedés egyik üzlete, mely 2017 óta üzemel, illetve egy népszerű drogéria, mely 2022 óta üzemel 2027-ig határozott szerződéssel, melyet +2x5 évig megújíthat. Ezek mellett még 6 kisebb üzletet is tartalmaz az ingatlan, melyekből nincs mindegyik hasznosítva.Az üzletház előtt parkoló található 21 beállóval, bal oldalon pedig további 44 db parkoló található. A parkolók az üzlettulajdonosok közös tulajdonában és használatában vannak.Az ingatlan havonta 10.212 € + ÁFA bérleti bevételt hoz. Az építményadó költsége a bérbeadót terheli.A Net Operating Income jelenleg kb. 125.000 €. Az ingatlan jelenlegi hozama 7.4%.Az ingatlan 1/1-es tulajdoni hányada, vagy a tulajdonos projektcég 100% üzletrésze is eladó per- teher- és igénymentes állapotban.Irányár: 1.700.000 EUR + ÁFAVárjuk szíves érdeklődését!

További adatok

Telekterület: -
Kert mérete: -
Erkély mérete: -
Felszereltség: -
Parkolás: -
Kilátás: -
Egyéb extrák:  
-

Hirdető adatai

Hirdető neve: Otthon Centrum
Kapcsolattartó: Nagy Tibor
Hirdető telefonszáma: +36 70 716 9901
Honlap: -

Üzenetet küldhet a hirdetőnek:
Az Ön neve:
Az Ön e-mail címe:
Üzenet: