Pest megye, Gyál


 

Hivatkozási szám: 3207642

Ingatlan adatai

Irányár: 127 990 000 Ft
Típus: ház
Kategória: eladó
Alapterület: 137 m2
Fűtés: -
Állapota: új
Szobák száma: 5
Építés éve: 2025
Szintek száma: -

Részletes leírás

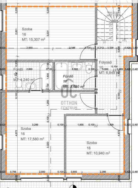
Megvételre kínálunk Gyálon csendes kis utcában ikerház felét.A 2 lakásos lakóépület saját garázzsal és saját kert résszel rendelkezik.Az építkezés jelen szakaszában igény szerint választható a nappali+3 hálószoba vagy a nappali+ 4 szoba kialakítás, illetve a burkolatok, a beltéri ajtók és a gépesített konyha választható.Az ingatlan Gyál családi házas, csendes zöldövezetében, 574 m2-es telken helyezkedik el, 136 m2, 201 m2 használatú kerttel.A ház H tarifás áramellátást kap, energetikai besorolása A+ lesz.Tervezett átadás: 2025 december.Az energetika besorolása A+.Fűtés, hűtés, melegvíz:Központi levegő–víz hőszivattyús rendszer szolgáltatja a fűtést, hűtést és a használati melegvizet.Padlófűtés a teljes lakótérben, valamint fan-coil hűtés/fűtés a nappaliban és emeleti szobákban.Okos vezérlés előkészítve:Igény esetén helyiségenkénti termosztátos vezérlés és okosotthon rendszer is kialakítható.Szerkezeti és műszaki adatok:•Monolit vasbeton lemezalap – biztos, mozgásálló alapozás.•Külső falak: 30 cm vastag Leier hőszigetelő tégla.•Válaszfalak: Kiemelkedő hangszigetelésű Silka mészhomok tégla.•Födémszerkezet: Hang- és tűzgátló tulajdonságokkal, statikai tervek szerint.•Homlokzati hőszigetelés: 12 cm vastag EPS szigetelés.•Tető monolit szerkezetű, szigetelés: 20 cm vastag üveggyapot, extra hőmegtartás érdekében.Szigetelés: 20 cm vastag üveggyapot.Nyílászárók és árnyékolástechnika:•Biztonságos, többpontos záródású bejárati ajtók (MABISZ minősítéssel).•Energiahatékony műanyag ablakok, belső műanyag és külső alumínium párkányokkal.•Vakolható redőnyszekrények, opcionálisan hőszigetelt alumínium redőnyökkel és szúnyoghálókkalRendezett, parkosított saját kert, ideális családi programokhoz, pihenéshez vagy konyhakert kialakításához.•A kert rendezése a vételár részét képezi.Garázs és parkolás:•Minden lakáshoz saját integrált garázs tartozik, közvetlen lakótéri kapcsolattal.Amennyiben kérdése lenne, vagy szeretné megtekinteni személyesen is, kérem hívjon bizalommal, várom.Teljeskörű pénzügyi és jogi háttér-szolgáltatással várom kedves ügyfeleimet.

További adatok

Telekterület: 201 m2
Kert mérete: 201 m2
Erkély mérete: 10 m2
Felszereltség: -
Parkolás: -
Kilátás: -
Egyéb extrák:  
-

Hirdető adatai

Hirdető neve: Otthon Centrum
Kapcsolattartó: Csuha Attila
Hirdető telefonszáma: +36 70 465 7026
Honlap: -

Üzenetet küldhet a hirdetőnek:
Az Ön neve:
Az Ön e-mail címe:
Üzenet: