Vas megye, Kőszeg


 

Hivatkozási szám: 3207378

Ingatlan adatai

Irányár: 79 900 000 Ft
Típus: ház
Kategória: eladó
Alapterület: 87 m2
Fűtés: elektromos
Állapota: új
Szobák száma: 3
Építés éve: 2025
Szintek száma: -

Részletes leírás

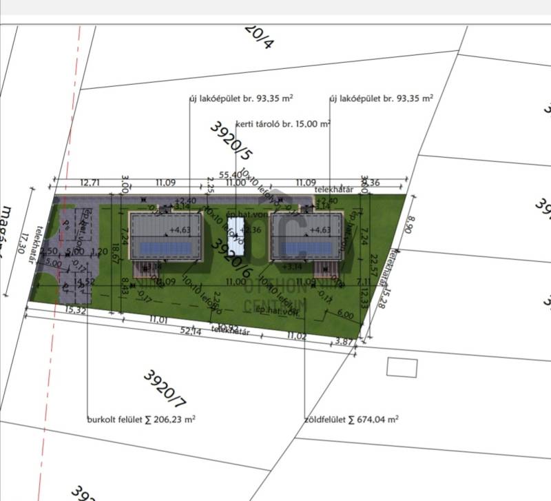
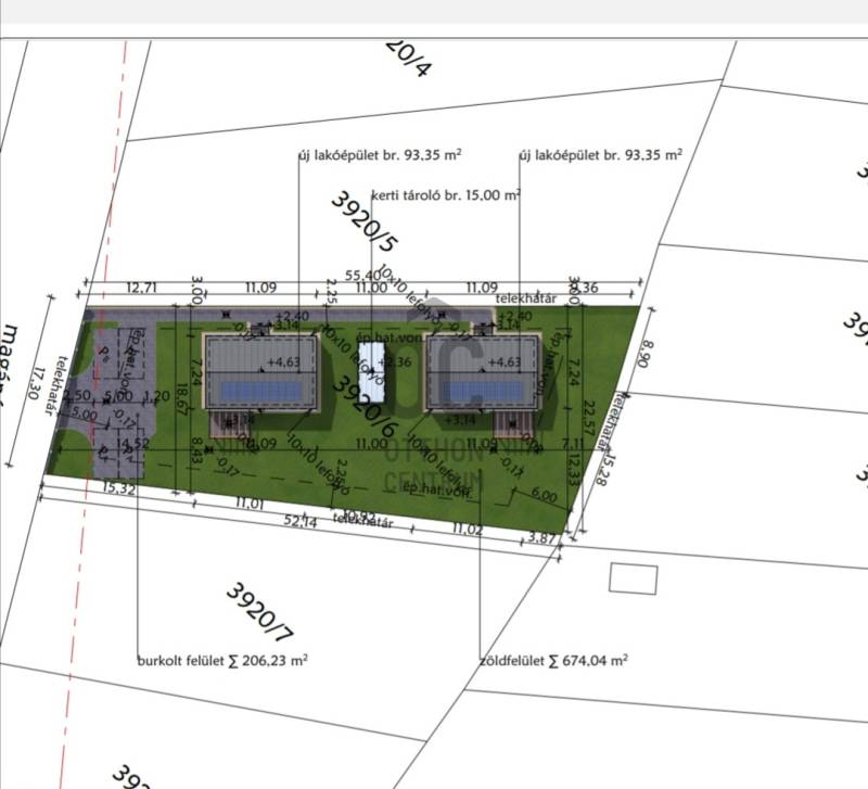
UTOLSÓ LEHETŐSÉG !ÖNÁLLÓ CSALÁDI HÁZ!Kőszegen a Borostyánkő lakóparkban eladó 87 négyzetméter hasznos alapterületű , fémvázas könnyűszerkezetes családi ház 440 négyzetméteres telken . A házban három szoba található, így ideális lehetőséget kínál családoknak, pároknak vagy akár befektetőknek is. A tágas nappali a LED hangulatvilágítással és a világos, napfényes terekkel garantálja a kellemes légkört, ahol szívesen töltheti el az időt barátaival és családjával. A 2 fürdőszoba modern kialakítása és a ház többi helyiségének harmonikus összhangja a legmagasabb kényelmet biztosítja. A 12 négyzetméteres teraszról gyönyörű panoráma nyílik, amely lehetőséget ad a reggeli kávé elfogyasztására vagy a naplemente élvezetére. Az ingatlan fűtése hőtükör elektromos (infra) rendszerrel működik, míg a hűtésről klíma gondoskodik, így az év bármely szakában kellemes hőmérsékletet biztosít. Nappaliban helyet kapott egy szilárd tüzelésű kandalló kialakítására is alkalmas kémény. Nyílászárók 3 rétegű hőszigetelt üveggel ellátott műanyag ablakok. A környék csendes és biztonságos, ideális választás fiatal felnőttek számára, akik a nyugalmat és a természet közelségét keresik, de mégis szeretnék élvezni a városi élet előnyeit. A közlekedés rendkívül kedvező, hiszen az ingatlan könnyen megközelíthető autóval, és a tömegközlekedési lehetőségek is a közelben találhatóak, így a város bármely pontja gyorsan elérhető. A környék számos szolgáltatással rendelkezik, beleértve boltokat, éttermeket és szórakozási lehetőségeket, amelyek megkönnyítik a mindennapi életet. Birtokba adás 1 hónapon belül!A képek az ingatlanban készültek!Projekt bemutatásaUTOLSÓ SZABADONÁLLÓ CSALÁDI HÁZ !Kőszegen a Borostyánkő lakóparkban eladó fémvázas, könnyűszerkezetes családi ház 440 nm-es önálló helyrajzi számú telken.A település klímája szubalpin, egyedülállóan az országban. Kőszeg infrastruktúrája kiváló, bölcsőde, óvoda, általános és középiskola egyaránt rendelkezésre áll a családok számára.Határváros révén 20 km-en belül ausztriai autópálya és az M86 gyorsforgalmi útra csatlakozás teszi könnyen elérhetővé.Kőszeg történelmi múltján kívül turistaútvonalai, a környéken lévő rendezvények, programok miatt népszerű az idelátogató turisták körében. Munkalehetőséget a közeli városok (Szombathely, Bük, Sárvár), illetve az osztrák munkaadók biztosítanak.A telkek saját úttal rendelkeznek, átmenő forgalom nincs az utcában. Fekvésük miatt örök-panorámás kilátással rendelkeznek a telkek a Kőszegi hegységre.Közművek közül víz, csatorna, villany áll rendelkezésre.Az ingatlanok fémvázas, könnyűszerkezetes technológiával épülnek, kívülről 20 cm-es nikecellel burkolva.A tető fémlemezes fedésű cellulóz alapú öko fújt födém szigeteléssel.Nyílászárók prémium minőségű 3 légkamrás antracit szürke műanyag ablakok. Fűtése hőtükrös, modern infra padlófűtés, szabályozással.A meleg víz-ellátásról Ariston villanybojler gondoskodik.A hirdetési ár tartalmazza: telekár, szaniterek, lámpák-kapcsolók-dugaljak ,burkolatokat.Nappaliban split klíma és szilárd tüzelésű kandalló kiépítéséhez kémény áll a rendelkezésre.CSOK és egyéb hiteltermékek igénybevétele lehetséges!

További adatok

Telekterület: 440 m2
Kert mérete: 440 m2
Erkély mérete: 12 m2
Felszereltség: -
Parkolás: -
Kilátás: -
Egyéb extrák:  
-

Hirdető adatai

Hirdető neve: Otthon Centrum
Kapcsolattartó: Tóth Éva
Hirdető telefonszáma: +36 70 412 5241
Honlap: -

Üzenetet küldhet a hirdetőnek:
Az Ön neve:
Az Ön e-mail címe:
Üzenet: