Zala megye, Balatongyörök


 

Hivatkozási szám: 3203223

Ingatlan adatai

Irányár: 119 000 000 Ft
Típus: ház
Kategória: eladó
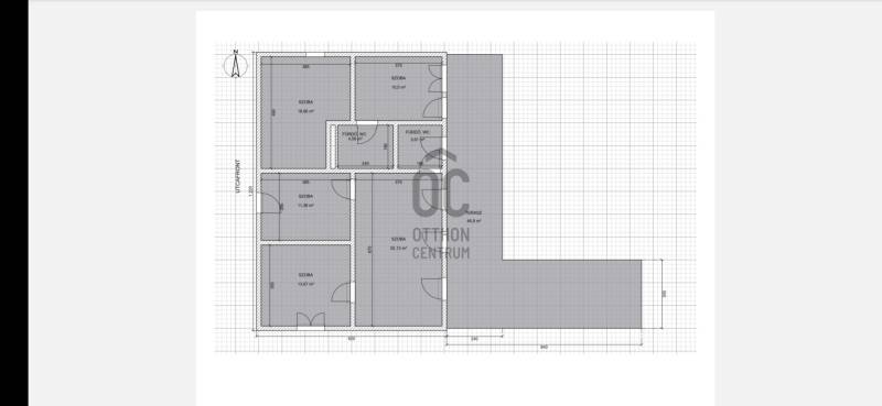
Alapterület: 186 m2
Fűtés: gáz (cirko)
Állapota: -
Szobák száma: 6
Építés éve: 2000
Szintek száma: -

Részletes leírás

Képzelje el, hogy egy olyan otthonra talál, amely nemcsak a kényelmet, hanem a nyugalmat is biztosítja Önnek és családjának, mindezt a Balaton közvetlen közelében! Balatongyörökön, Zala vármegye szívében, egy igazán különleges, többgenerációs ház várja új tulajdonosát. Ez a 186 négyzetméteres ingatlan 803 négyzetméteres telken helyezkedik el, és a környék csendes, rendezett utcájában található, ideális választás minden korosztály számára, akik egy nyugodt, de központi elhelyezkedésű otthonra vágynak. A házban összesen 6 szoba található, amelyek között tágas nappali is helyet kapott, így bőséges tér áll rendelkezésére a családi együttlétekhez és baráti összejövetelekhez. Az ingatlan állapota jó, a felső szint 2009-ben épült, az ingatlanban egyéb több friss felújítás is történt, így Önnek nem kell aggódnia a felújítási munkálatok miatt. A fürdőszobák száma 4, ami kényelmet biztosít a nagyobb családok számára is. A 40 négyzetméteres terasz pedig ideális helyszín a reggeli kávézáshoz vagy a nyári estéken való pihenéshez, miközben gyönyörködhet a környék panorámájában, mely nagyrészt zöldre néző, illetve a téli hónapokban a Balaton látványában is. A házhoz tartozik egy kerti tároló is, mely garázsként is funkcionálhat és amely praktikus megoldást kínál a szerszámok és egyéb eszközök tárolására. A kertben helyet kapott egy nagy méretű 3 éve épített, tetővel ellátott kerti kiülő / pavilon is. Az ingatlan tehermentes, így azonnal birtokba vehető, és kisállattal is költözhető, ami különösen vonzó lehet a házikedvencek szerelmeseinek. A beépített bútorok és szekrények, valamint az integrált szúnyogháló szintén hozzájárulnak az otthon kényelméhez. Befektetésnek, apartmanház üzemeltetésre is kiválóan alkalmas (bejáratot vendégkörrel) ! Az adatok kizárólag a megbízóink által rendelkezésünkre bocsátott információkon alapulnak.Fentiekre tekintettel, az adatok teljességéért, helyességéért és aktualitásáért nem vállalunk felelősséget.Az árváltozás, adatmódosítás és közbeni értékesítés jogát fenntartjuk, mindezekért jogi felelősséget nem áll módunkban vállalni.A közlekedés kitűnő, hiszen a környéken könnyen elérhetők a helyi buszjáratok és néhány percnyi sétára a vasútállomás, amelyek gyors kapcsolatot biztosítanak a közeli településekkel és a Balaton partjával. Kertje rendezett, található itt rengeteg leander, datolyaszilva, diófa, magnóliafa. A község központja mindössze pár perc sétára található, ahol üzletek, boltok, posta, éttermek és szolgáltatások széles választéka várja Önt. A csendes, biztonságos környék pedig lehetővé teszi, hogy a mindennapokban is élvezhesse a nyugalmat és a természet közelségét. A helyi strand, illetve a Balaton part mindössze pár perc sétatávolságon belül elérhető. Ez az ingatlan nem csupán egy ház, hanem egy lehetőség arra, hogy otthonra találjon egy felkapott környéken, ahol a természet és a városi élet harmonikusan találkozik. Ha bármilyen kérdése van, vagy szeretné megtekinteni ezt a csodálatos ingatlant, kérem, ne habozzon keresni! Bizalommal állok rendelkezésére, hogy segítsek Önnek a legjobb döntés meghozatalában.

További adatok

Telekterület: 803 m2
Kert mérete: 803 m2
Erkély mérete: 30 m2
Felszereltség: -
Parkolás: -
Kilátás: -
Egyéb extrák:  
-

Hirdető adatai

Hirdető neve: Otthon Centrum
Kapcsolattartó: Poldauf Róbert
Hirdető telefonszáma: +36 70 469 3266
Honlap: -

Üzenetet küldhet a hirdetőnek:
Az Ön neve:
Az Ön e-mail címe:
Üzenet: