Hajdú-Bihar megye, Hajdúsámson


 

Hivatkozási szám: 3199978

Ingatlan adatai

Irányár: 61 900 000 Ft
Típus: ház
Kategória: eladó
Alapterület: 76 m2
Fűtés: -
Állapota: új
Szobák száma: 4
Építés éve: 2026
Szintek száma: -

Részletes leírás

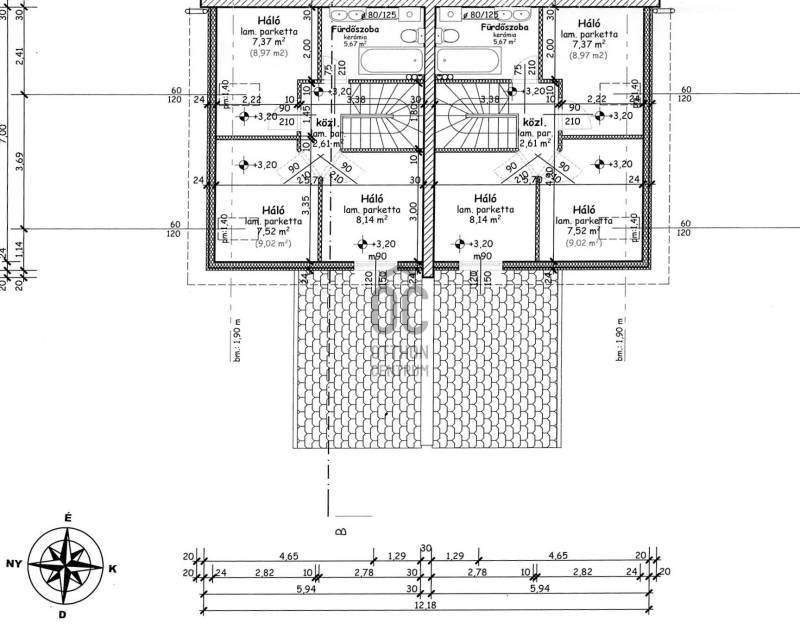
Most egy igazán különleges lehetőséget kínálunk számodra Sámsonkert városrészben. Az ingatlan alapterülete 76 négyzetméter, amelyben négy tágas szoba és két fürdőszoba található. A terasz mérete 13,52 négyzetméter, ahol a reggeli kávédat vagy a barátaiddal eltöltött estéidet élvezheted a friss levegőn. A ház kiváló állapotban van, és a megújuló hőszivattyús fűtési rendszernek köszönhetően nemcsak gazdaságos, hanem környezetbarát megoldást is kínál. A klímaberendezés pedig biztosítja, hogy a nyári hónapokban is kellemes hőmérsékletet varázsolhass otthonodba. Az ingatlan környezete csendes és biztonságos, ideális helyszín a nyugodt hétköznapokhoz és a baráti összejövetelekhez. A környék adottságai lenyűgözőek: a közlekedési lehetőségek kiválóak, hiszen autóval könnyen megközelíthető a város központja, ahol számos bolt, étterem és szórakozási lehetőség vár rád. A tömegközlekedés is jól kiépített, buszmegálló 5 perc sétára található így a város többi részéhez is könnyedén eljuthatsz. A lakás jellemzői:- 15 cm acél fémszerekezet teherhordó falakkal és hanggátló elválasztó téglafalakkal épült- nettó lakótér 76 m2 mely magában foglal 4 lakószobát, 2 fürdőszobát és nappalit külön- a lakásokhoz osztatlan közös megosztással került kialakításra a saját telekrész ezen ingatlanhoz okirat szerint 182 m2 csatlakozik- a lakások külön mérő órákkal felszereltek (Villany óra, külön hőszivattyú, fúrt kút külön szivattyúval, lakásonként 10 m3-es zárt szennyvíz tározó és klíma berendezés 3,5 kW kapacitással)- a lakásokban mindenütt padlófűtés van kiépítve- nyílászárók 3 rétegű üvegezéssel ellátott műanyag ablakok, a tetőtérben fa nyílászárók- padlástérben 30 cm szigetlés, a homloztaon 15 cm hőszegetelés készült.- átadás: 2026 május- alapterület 76 m2+3,45 m2 kazánház + 13,52 m2 terasz- kulcsrakész állapotban, az ár konyhabútort és kerítést nem tartalmazAz ingatlan babaváróval és CSOK+-al vásárolható!Az Otthon Start hitel igényelhető!Ha szeretnél többet megtudni erről a kivételes ingatlanról, vagy kérdéseid lennének a vásárlással kapcsolatban, bátran keresd fel a hirdetésünket! Bizalommal állunk rendelkezésedre, hogy segítsünk megtalálni álmaid otthonát vagy befektetési lehetőségedet. Ne hagyd ki ezt a páratlan ajánlatot, hiszen ez a lehetőség gyorsan el fog tűnni a piacon!

További adatok

Telekterület: 182 m2
Kert mérete: 182 m2
Erkély mérete: 14 m2
Felszereltség: -
Parkolás: -
Kilátás: -
Egyéb extrák:  
-

Hirdető adatai

Hirdető neve: Otthon Centrum
Kapcsolattartó: Rákosné Tímea
Hirdető telefonszáma: +36 70 412 5026
Honlap: -

Üzenetet küldhet a hirdetőnek:
Az Ön neve:
Az Ön e-mail címe:
Üzenet: