Pest megye, Szentendre


 

Hivatkozási szám: 3198921

Ingatlan adatai

Irányár: 174 900 000 Ft
Típus: ház
Kategória: eladó
Alapterület: 127 m2
Fűtés: -
Állapota: új
Szobák száma: 5
Építés éve: 2026
Szintek száma: -

Részletes leírás

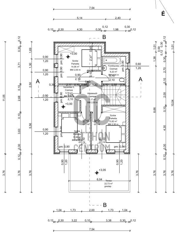
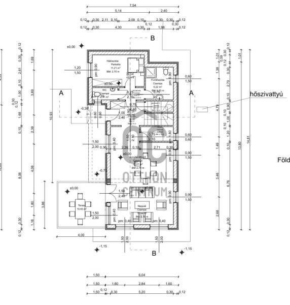
Fedezze fel ezt az új építésű ingatlant Szentendre gyönyörű Pismány városrészében, ahol a természet közelsége és a modern életstílus harmonikusan találkozik. RENDKÍVÜLI ! Ez az ár 2025.12.31.-ig történő szerződés kötés esetén érvényes!Panorámás új építésű lakóház Pismányban!RENDKÍVÜLI ! Ez az ár 2025.12.31.-ig történő szerződés kötés esetén érvényes!Fedezze fel ezt az új építésű ingatlant Szentendre gyönyörű Pismány városrészében, ahol a természet közelsége és a modern életstílus harmonikusan találkozik.Ez a most induló, új építésű 127 nm hasznos alapterületű ház, összesen 28nm nagyságú terasszal kerül megépítésre, mely ideális választás lehet családok számára, akik tágas otthonra vágynak. 4 hálószoba2 fürdőszobahatalmas nappalikonyha-étkezőkamraháztartási helység....A ház belső elrendezése rendkívül praktikus öt szobát és két fürdőszobát tartalmaz, így minden családtagnak elegendő teret biztosít. A modern hőszivattyús fűtési rendszer révén a fűtés hatékony és környezetbarát, ami hozzájárul a fenntartható életmódhoz. Az ingatlan panorámás kilátást kínál a környező dombokra, amely minden reggel egy új, csodálatos élménnyel ajándékozza meg lakóit.A város központja mindössze néhány perc autóútra található, ahol számos bolt, étterem és szolgáltatás várja Önt. A helyi közlekedés is jól kiépített, így a főváros könnyen elérhető, ami különösen előnyös lehet a munkába járók számára.A környéken található magán bölcsődék, iskolák és óvodák kiváló hírnévnek örvendenek, így a gyermekeik jövője is biztosított.Ez az ingatlan nem csupán egy új otthon, hanem egy életstílus, amely a nyugalmat és a modern kényelmet ötvözi.Amennyiben bármilyen kérdése merülne fel az ingatlannal vagy a vásárlási folyamattal kapcsolatban, bizalommal forduljon hozzám. Szívesen segítek Önnek a legjobb döntés meghozatalában, hogy az álmai otthona valósággá válhasson.

További adatok

Telekterület: 694 m2
Kert mérete: 694 m2
Erkély mérete: -
Felszereltség: -
Parkolás: -
Kilátás: -
Egyéb extrák:  
-

Hirdető adatai

Hirdető neve: Otthon Centrum
Kapcsolattartó: Giczi Andrea
Hirdető telefonszáma: +36 70 412 4351
Honlap: -

Üzenetet küldhet a hirdetőnek:
Az Ön neve:
Az Ön e-mail címe:
Üzenet: