Hajdú-Bihar megye, Debrecen


 

Hivatkozási szám: 3198450

Ingatlan adatai

Irányár: 188 520 000 Ft
Típus: ház
Kategória: eladó
Alapterület: 157 m2
Fűtés: -
Állapota: új
Szobák száma: 5
Építés éve: 2026
Szintek száma: -

Részletes leírás

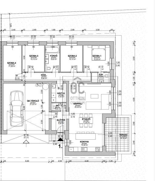
Eladásra kínálunk egy kivételes minőségben megtervezett, letisztult, modern stílusú ikerházat Debrecen Nagymacs részén, amely minden szempontból a jövő otthona. Az ingatlan magas szintű energiahatékonysággal, kimagasló komforttal és exkluzív esztétikával várja új tulajdonosát. Az otthon négy különálló, tágas hálószobával lett kialakítva, így ideális nagyobb családok számára is. A lakáshoz tartozó garázs mérete több mint 37 m², így két gépjármű komfortos tárolására is alkalmas, plusz extra tárolóhelyet biztosít!Főbb extrák és előnyök:- Letisztult, időtálló homlokzat, prémium szilikonos nemesvakolattal és elegáns homlokzatburkolatokkal, nagy üvegfelületekkel- Hatalmas, napfényes terek, modern belsőépítészeti kialakítással- Saját, kétállásos garázs, parkolási lehetőséggel több autó részére- Magas szintű hő- és hangszigetelés: háromrétegű műanyag ablakok (Ug=0,7 W/m2K), 35 cm vastag kőzetgyapot tetőszigetelés, dupla rétegű padlóhőszigetelés- Padlófűtés minden helyiségben- Levegő-víz hőszivattyús hűtés és fűtés, H-tarifás mérővel (2 db fan-coil hűtőberendezés/lakás)- Saját, 5 kW-os napelemes rendszer lakásonként- Prémium minőségű burkolatok választható színekben (br. 10.000-15.000 Ft/m²-ig), igényesen kialakított vizes helyiségek- Modern, exkluzív szaniterek (fürdőkád, zuhany, mosdók, WC prémium árkategóriában)- Tágas, világos nappali-étkező-konyha egyben, közvetlen teraszkapcsolattal- Hideg- és melegburkolatok, minőségi laminált parketta (7-8 mm)A lakóház minden elemében a korszerű, energiatudatos építészet értékeit képviseli. Kifinomult, időtálló megjelenést kapott prémium szilikonos nemesvakolattal, letisztult homlokzatburkolatokkal és nagyvonalú üvegfelületekkel. A világos, napfényes nappali, étkező és konyha egységből közvetlen kapcsolat nyílik a teraszra és a parkosított, térköves udvarra, ahol az automata öntözőrendszer előkészítés is megtalálható. Esztétikus, világos térkő burkolat az udvaron, parkosított zöldterület, automata öntözőrendszer előkészítés, dísznövények, elkerített telek elektromos kapuval.Szerkezeti megoldások:- VIABLOKK falszerkezet – kiemelkedő teherbírás és hőszigetelés- Szeglemezes rácsos tetőszerkezet, előszigetelt tetőpanel (antracitszürke RAL 7016)- Vasbeton koszorúk, hanggátló falak a legjobb privátszféra érdekében- Tartós, csúszásmentes burkolatok lépcsőkön, közlekedőkön- Minden hatályos szabványnak megfelelő csapadékvíz és hulladék elhelyezés – süllyesztett kukatárolóval, csapadékvíz-elvezető rendszerrel.Kiváló lokáció, jövő biztos technológia, kompromisszum-mentes minőségEz az ingatlan a maximális lakókomfort és a fenntartható, energiatudatos kialakítás tökéletes kombinációja.Ha Ön valóban időtálló, multifunkcionális, exkluzív otthont keres családjának Debrecenben, ne habozzon érdeklődni – személyes bemutatást, részletes műszaki konzultációt, és látványterveket is biztosítunk!#debrecen #nagymacs #újépítés #2026 #hőszivattyú #ikerház #viablokk #4háló #napelem #duplagarázs

További adatok

Telekterület: 660 m2
Kert mérete: 660 m2
Erkély mérete: 14 m2
Felszereltség: -
Parkolás: -
Kilátás: -
Egyéb extrák:  
-

Hirdető adatai

Hirdető neve: Otthon Centrum
Kapcsolattartó: Nemes Edit
Hirdető telefonszáma: +36 70 716 9906
Honlap: -

Üzenetet küldhet a hirdetőnek:
Az Ön neve:
Az Ön e-mail címe:
Üzenet: