Hajdú-Bihar megye, Debrecen


 

Hivatkozási szám: 3198412

Ingatlan adatai

Irányár: 220 000 Ft/hó
Típus: lakás (újépítésű)
Kategória: kiadó
Alapterület: 38 m2
Fűtés: -
Állapota: új
Szobák száma: 2
Építés éve: 2025
Szintek száma: -

Részletes leírás

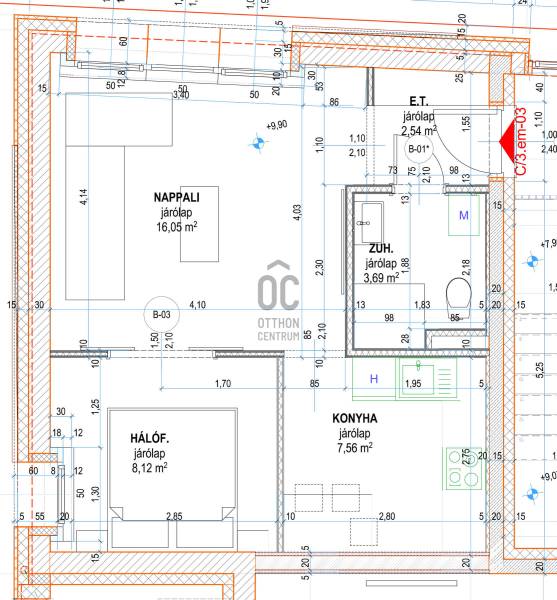
Debrecen belvárosában, a Miklós utcában 2 évre kiadó, egy most átadott új építésű liftes társasház lakása.Az ingatlan 38 m2 - es, modern elrendezésű.Helyiségei : nappali, konyha - étkező, szoba, fürdő + folyosó.Még most lett átadva, berendezve, ön / Te lehetsz az első lakója.A bútorok, gépek, stb... , tehát minden vadi új, garanciás.Műszaki jellemzői : Elektromos , távirányitós redőnnyel szerelt, hőszivattyús padlófűtéses, mennyezet hűtéssel, 3 rtg műanyag ablakokkal, fürdő zuhanyzós, mosógéppel, száritógéppel szerelt stb.., ami nagyon fontos, hogy minimális rezsivel fog működni az ingatlan.Amennyiben igény szerint kell még pótolni bizonyos dolgokat, a tulajdonos biztosítja. ( pl : evőeszközök, edények, tv, stb.. )Megbízható, magára és az környezetére igényes bérlőt / bérlőket keresünk.Ha felkeltettem az érdeklődését, kérem, hívjon bizalommal.

További adatok

Telekterület: -
Kert mérete: -
Erkély mérete: -
Felszereltség: -
Parkolás: -
Kilátás: utcai
Egyéb extrák:  
-

Hirdető adatai

Hirdető neve: Otthon Centrum
Kapcsolattartó: Tóth Ferenc
Hirdető telefonszáma: +36 70 716 9076
Honlap: -

Üzenetet küldhet a hirdetőnek:
Az Ön neve:
Az Ön e-mail címe:
Üzenet: