Pest megye, Pilisborosjenő


 

Hivatkozási szám: 3198344

Ingatlan adatai

Irányár: 167 000 000 Ft
Típus: ház
Kategória: eladó
Alapterület: 114 m2
Fűtés: -
Állapota: új
Szobák száma: 5
Építés éve: 2026
Szintek száma: -

Részletes leírás

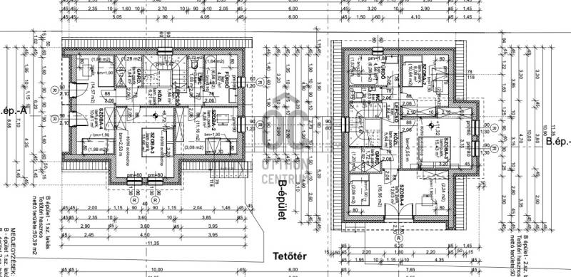
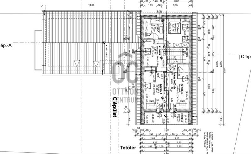
PILISBOROSJENŐN ÚJ ÉPÍTÉSŰ CSALÁDI HÁZAK ELADÓK!A telek Pilisborosjenőn csodálatos környezetben, a pilisi Nagy-Kevély lábánál fekszik, melyről gyönyörű panoráma tárul elénk a környező hegyekre, településekre, este a Parlament látványa is lenyűgöző.A házak magas műszaki tartalommal, energiahatékony megoldásokkal és prémium minőségű anyagokkal kerülnek kialakításra az épület szerkezetétől egészen a látható és tapintható anyagokig. Az épület ’A’ energetikai besorolású, korszerű anyagokból és technológiákkal épül, ezért gazdaságosan üzemeltethető. A padlófűtés hőszivattyúról működik, míg a hűtésért split klímák felelnek., melyek alternatív fűtési megoldást is nyújtanak.Összesen 6 ház, 3x2 lakóépület épül (A, B, C épületek), mind önálló, saját kerttel, autóbeállóval vagy garázzsal kerül értékesítésre. Az egyes házak egy közös útról közelíthetőek meg. A házak kétszintesek, 114-196 m²-esek, alsó szinten a közösségi tér, azaz előszoba, konyha, étkező nappali, zuhanyzós fürdő, WC, háztartási helyiség, kamra és 1 szoba kerül kialakításra. A tetőtéri szinten a közlekedőből 3db hálószoba, gardrób és fürdőszoba nyílik.A C épület 2.-es lakása 3 szintes, azaz a pinceszinten kerül kialakításra egy 2 állásos garázs, a gépészeti helyiség és további tárolási lehetőség.Ez a Pest megyei régió, Üröm, Pilisborosjenő folyamatosan fejlődő része, egy zsáktelepülés, mely Budapesttől északnyugatra, 13 km-re található. Autóval Budapesttől a 3.kerületen át a 10-es úton, vagy Csillaghegy felől is megközelíthető. Tömegközlekedés terén autóbusz az Árpád híd irányába és Ürömön vonatmegálló is elérhető, mely a Nyugati Pályaudvar fele közlekedik.Élhető, nyugodt település minden korosztály számára, egy kis gyöngyszem a főváros közelségében. Megtalálható új építésű óvoda, bölcsőde, általános iskola nagy tornateremmel, orvosi rendelők és szociális létesítmények. Pilisborosjenő erdős hegyekkel övezve, a természet közelségében rengeteg kirándulási lehetőséget is kínál. Közelben az Egri vár másolata, Teve-szikla, , Kevélyhegyi tanösvény, levendula mezők, lovardák, a pilisborosjenői szőlővidék található.Bővebb információért, műszaki tartalommal, megtekintéssel kapcsolatban keressen bizalommal!Projekt bemutatásaÚJÉPÍTÉSŰ PRÉMIUM CSALÁDI HÁZAK PILISBOROSJENŐN, A NAGY-KEVÉLY LÁBÁNÁLFedezze fel új otthonát Pilisborosjenőn, Budapest közvetlen közelében, ahol a természet és a modern építészet találkozik. A festői panoráma a pilisi hegyekre, a környező településekre, sőt, tiszta estéken egészen a Parlamentig nyújt felejthetetlen látványt.Prémium minőség – energiahatékony megoldásokkalAz épületek a legkorszerűbb technológiákkal és anyagokkal készülnek, „A” energetikai besorolással. A hőszivattyús padlófűtés, a split klímák hűtés-fűtés funkciója és a gondosan megválasztott prémium burkolatok garantálják az otthon kényelmét és gazdaságos fenntarthatóságát.Otthon, amely igazodik az Ön életéhezÖsszesen 6 lakóház, saját kerttel, autóbeállóval vagy garázzsalKétszintes, 114–196 m²-es terek – átgondolt alaprajzokkalFöldszinten: tágas nappali-étkező-konyha, hálószoba, fürdő, háztartási helyiség, kamraEmeleten: három hálószoba, gardrób és fürdőszobaKülönlegesség: a C épület egyik lakása háromszintes, kétállásos garázzsal és extra tárolási lehetőséggelKivételes elhelyezkedés – közel a fővároshoz, mégis a természet ölelésébenPilisborosjenő igazi gyöngyszem: nyugodt, biztonságos település minden korosztály számára, mindössze 13 km-re Budapesttől. Autóval és tömegközlekedéssel is könnyen megközelíthető (busz, vonat).A település saját óvodával, iskolával, orvosi rendelővel és modern közösségi létesítményekkel rendelkezik. A környék kirándulási és sportlehetőségek széles tárházát kínálja: Teve-szikla, Egri vár másolata, Kevélyhegyi tanösvény, levendulamezők és lovardák teszik teljessé az itt töltött mindennapokat.✨ Ez nem csupán egy ingatlan – ez az Ön jövőbeli otthona, ahol a természet közelsége és a modern élet kényelme tökéletes harmóniában találkozik.Bővebb információért, műszaki tartalommal, megtekintéssel kapcsolatban keressen bizalommal!

További adatok

Telekterület: 312 m2
Kert mérete: 312 m2
Erkély mérete: 5 m2
Felszereltség: -
Parkolás: -
Kilátás: -
Egyéb extrák:  
-

Hirdető adatai

Hirdető neve: Otthon Centrum
Kapcsolattartó: Szaszala Zsolt
Hirdető telefonszáma: +36 70 469 3681
Honlap: -

Üzenetet küldhet a hirdetőnek:
Az Ön neve:
Az Ön e-mail címe:
Üzenet: