Pest megye, Nagykovácsi


 

Hivatkozási szám: 3195374

Ingatlan adatai

Irányár: 259 000 000 Ft
Típus: ház
Kategória: eladó
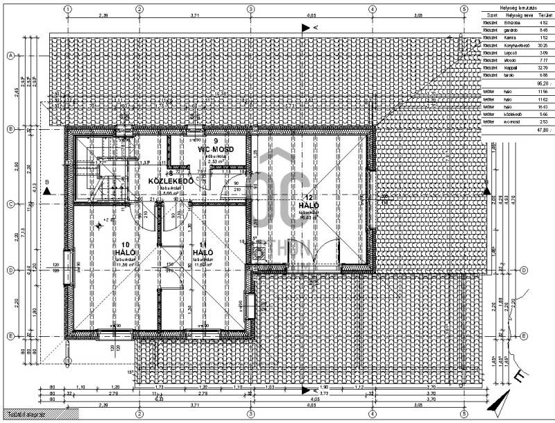
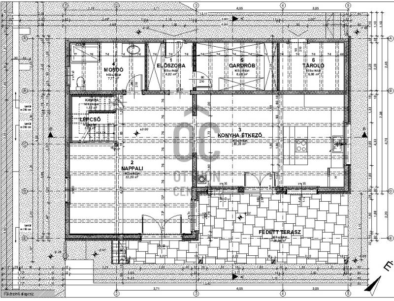
Alapterület: 156 m2
Fűtés: -
Állapota: -
Szobák száma: 4
Építés éve: 2019
Szintek száma: -

Részletes leírás

Eladó 156 nm-es, egyedi hangulatú családi ház Nagykovácsiban, erdő szomszédságábanNagykovácsi egyik legszebb, legnyugodtabb részén, a Cseresznyés városrész forgalomtól mentes zsákutcájának végén kínálunk eladásra egy 2019-ben épült, 156 nm-es, teraszos családi házat gyönyörűen gondozott, intim kerttel és közvetlen erdőkapcsolattal.✨ Főbb jellemzők:-156 nm lakótér, tágas nappali–konyha–étkező, 3 szoba, gardrób, 2 fürdőszoba-Panorámás franciaerkély kovácsoltvas korláttal-Nyárikonyha, szaletli bográcsozóval és sparhelttel-Baltresto thermowood fürdődézsa (200 cm átmérő, fával fűthető + elektromos fűtés és szűrőrendszer)-Két tároló, automata öntözőrendszer-Motoros alumínium redőnyök szúnyoghálóval-Riasztórendszer (helyi biztonsági szolgálathoz bekötve)???? Műszaki adatok:-Építés éve: 2019-Szerkezet: favázas, könnyűszerkezetes technológia-Szigetelés: 120 mm EPS + 150 mm ásványgyapot – nyáron nem melegszik át, télen gyorsan felfűthető-Nyílászárók: háromrétegű fa ablakok-Burkolatok: tömör tölgy padló, tölgy lépcső, fa födém, mészkő terasz-Fűtés: elektromos, programozható és online vezérelhető + Jotul öntöttvas kályha a nappaliban + padlófűtés a fürdőben-Energiatakarékos kialakítás a kiemelkedő hőszigetelésnek köszönhetően???? Konyha és étkező:-Beépített tömör tölgy konyhabútor-Bontott tégla fal és egyedi hangulatvilágítás (Olaszországból és Angliából rendelt lámpák)-Beépített gépek: AEG sütő, 70 cm-es főzőlap, AEG mosogatógép, BEKO amerikai hűtő???? Elhelyezkedés:A telek egyik oldala közvetlenül az erdővel határos, így egész évben friss levegőt, nyugalmat és természetközeli élményt biztosít. Nagykovácsi zsákfalu, Natura 2000-es védett terület szívében, átmenőforgalom nélkül, ugyanakkor a mindennapi élethez szükséges infrastruktúra (bevásárlás, iskola, óvoda, gyógyszertár, orvosi rendelő, tömegközlekedés) kb. 15 perc sétával elérhető.Ez az ingatlan nem csupán egy ház, hanem életérzés: a természet közelsége, a gondosan megválogatott prémium anyagok és a különleges részletek – a hangulatos kályhától a beépített konyhán át a fürdődézsáig – mind hozzájárulnak ahhoz, hogy egy igazán egyedi, értékálló otthont kapjon új tulajdonosa.Jöjjön el, és tapasztalja meg személyesen ezt a különleges hangulatot!

További adatok

Telekterület: 723 m2
Kert mérete: 723 m2
Erkély mérete: 26 m2
Felszereltség: -
Parkolás: -
Kilátás: -
Egyéb extrák:  
-

Hirdető adatai

Hirdető neve: Otthon Centrum
Kapcsolattartó: Németh György
Hirdető telefonszáma: +36 70 388 5191
Honlap: -

Üzenetet küldhet a hirdetőnek:
Az Ön neve:
Az Ön e-mail címe:
Üzenet: