Budapest, II.kerület


 

Hivatkozási szám: 3195141

Ingatlan adatai

Irányár: 800 000 Ft/hó
Típus: iroda
Kategória: kiadó
Alapterület: 382 m2
Fűtés: -
Állapota: -
Szobák száma: -
Építés éve: 1990
Szintek száma: -

Részletes leírás

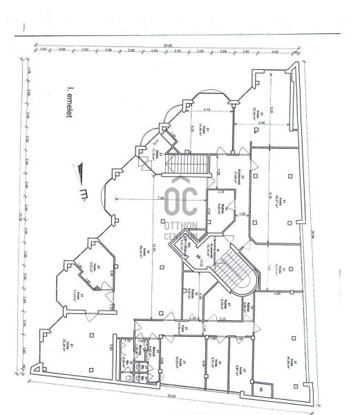
Teljes emelet, amely közvetlen utcai bejárattal rendelkezik. Az irodaként funkcionáló ingatlan központjában egy 80 m2-es, tanfolyamok, továbbképzések és előadások megtartására alkalmas tér van, amelyet körbevesznek a részben belső udvarra, részben az utca felé néző irodák,illetve kiszolgáló egységek. (konyha, mosdók, tároló, szerverszoba stb) Az épület pillérvázas szerkezetének köszönhetően a belső tér igény szerint alakítható.A nagy ablakfelületek természetes fényt biztosítanak , illetve a 3 rétegű üvegezésnek köszönhetően kiváló a hang és hőszigetelés.Az iroda fűtését kondenzációs gázkazán biztosítja. Valamennyi utcafronti helyiség klimatizált. Az ingatlan önálló mérőórákkal rendelkezik. Kaputelefon és központi riasztórendszer is kiépítésre került. Az irodákban a munkaállomásokhoz informatikai csatlakozás ki van építve.Tömegközlekedés kiváló, több busz(86,160,260) és villamos (4-es,6-os) pár lépésre található. 2 villamosmegállónyira a Mammut bevásárlóközpont és a Millenáris Park, a Duna felé pedig a Margit híd sétatávolságban van . Parkolni a környező utcákban és az irodaház melletti teremgarázsban lehet.Cégközpontnak, ügyfélközpontnak,irodának,oktatási központnak, bemutatóteremnek, vagy egészségügyi intézménynek egyaránt alkalmas, akár nagy ügyfélforgalom lebonyolításával is. Birtokbavétel Augusztustól lehetséges.A bérleti díj nettó, plusz ÁFA értendő!!!Ha költöztetné vállalkozását,érdemes mérlegelnie ezt a lehetőséget. További információkkal kapcsolatban várjuk megtisztelő érdeklődését!

További adatok

Telekterület: -
Kert mérete: -
Erkély mérete: -
Felszereltség: -
Parkolás: -
Kilátás: -
Egyéb extrák:  
-

Hirdető adatai

Hirdető neve: Otthon Centrum
Kapcsolattartó: Csányi Judit
Hirdető telefonszáma: +36 70 388 5006
Honlap: -

Üzenetet küldhet a hirdetőnek:
Az Ön neve:
Az Ön e-mail címe:
Üzenet: