Budapest, I.kerület


 

Hivatkozási szám: 3194698

Ingatlan adatai

Irányár: 2 580 600 Ft/hó
Típus: kereskedelmi/ipari ingatlan
Kategória: kiadó
Alapterület: 437 m2
Fűtés: -
Állapota: -
Szobák száma: -
Építés éve: -
Szintek száma: -

Részletes leírás

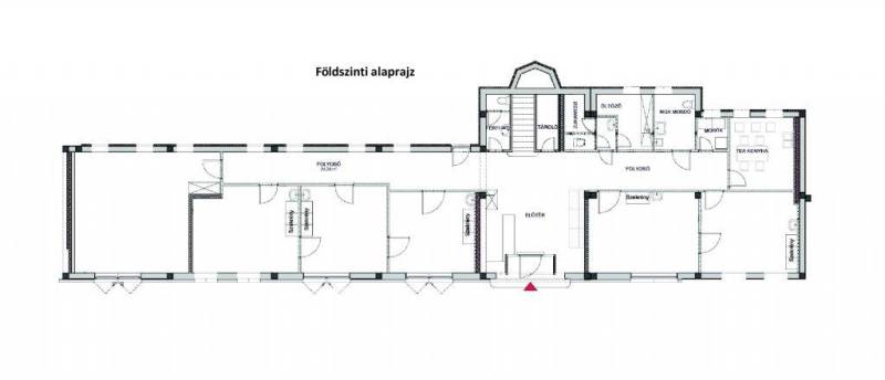
Budapest I. kerületében, Krisztinaváros elegáns részének nevezetes házában kiadó egy utcafronti, kétszintes, hármas tagolású iroda-üzlethelyiség.Tágas recepció, ahonnan a hármas tagolásnak köszönhetően egy nagy, vagy akár három külön szolgáltatói kör érhető el.Korábban itt exkluzív szépségszalon működött, mely szolgáltatási körre jelenleg is a legalkalmasabb az ingatlan. A belső terek a szobák közötti válaszfalak áthelyezésével szabadon variálhatóak. Elektromos padlófűtés, vízvezeték rendszer, klimatizálás minden szobában.Jelenlegi beosztás alapján 6+6 teljes szoba/iroda, plusz 2 alkóv (ablak nélküli tároló), nagy recepció, folyosók, mosdók, öltözők, zuhanyzók várják bérlőiket. Profilváltás esetén a 12 szobában/irodában összesen akár 24+15 munkaállomás is telepíthető, így a kétszintes ingatlan irodaházként közepes méretű vállalkozás központjává is válhat.Érdeklődése esetén állunk rendelkezésére! Az ingatlan személyes megtekintése előtt bővebb felvilágosítást adunk, további képeket is mutatunk, az ingatlantúrát kérésére megszervezzük.MIK azonosító: 3813100

További adatok

Telekterület: -
Kert mérete: -
Erkély mérete: -
Felszereltség: -
Parkolás: -
Kilátás: -
Egyéb extrák:  
-

Hirdető adatai

Hirdető neve: MIK Magyar Ingatlan Központ
Kapcsolattartó: Bosnyák Zoltán
Hirdető telefonszáma: +36-30-6936328
Honlap: -

Üzenetet küldhet a hirdetőnek:
Az Ön neve:
Az Ön e-mail címe:
Üzenet: