Pest megye, Isaszeg


 

Hivatkozási szám: 3194534

Ingatlan adatai

Irányár: 110 000 000 Ft
Típus: ház
Kategória: eladó
Alapterület: 155 m2
Fűtés: egyéb
Állapota: -
Szobák száma: 5
Építés éve: 2000
Szintek száma: -

Részletes leírás

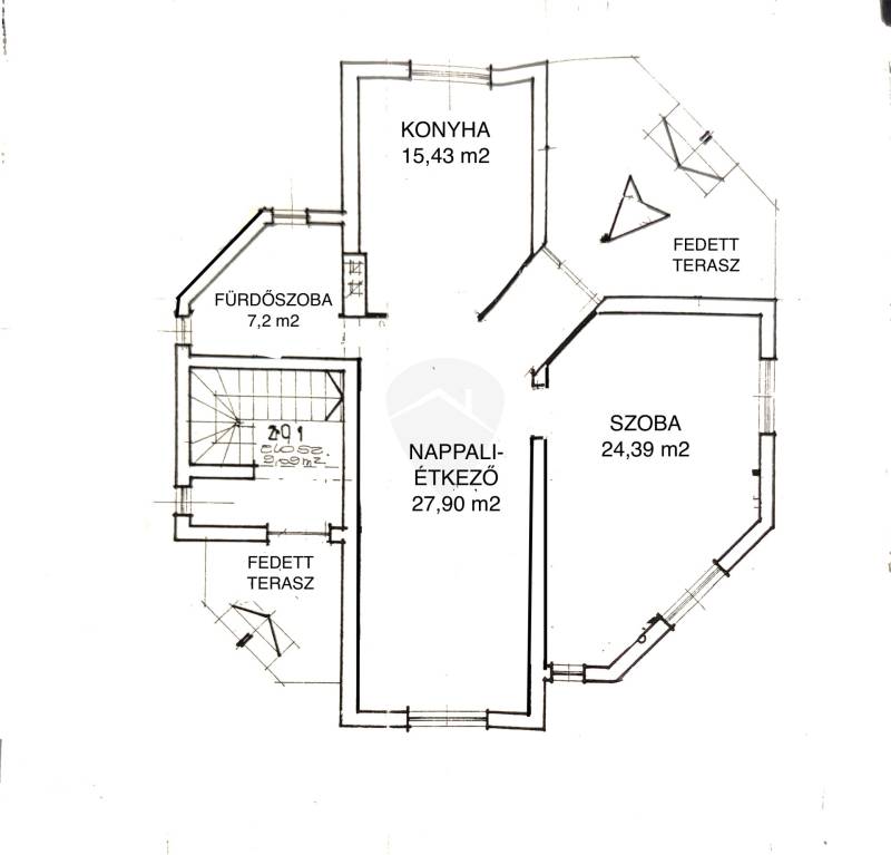
Eladó családi ház Isaszegen, a Március 15. utcában – ideális családosoknak!Eladásra kínálok Isaszeg Március 15. utcában egy 2000-ben épült, tégla falazatú, 155 m²-es, kétszintes családi házat, amely kényelmes otthont biztosít akár nagyobb család számára is.Főbb jellemzők:5 szobaGardrób szobaSzintenként 1-1 fürdőszoba2 teraszMelléképületben kialakított nyári konyha-nappaliFedett gépkocsi-beállóA ház korszerű és többféle fűtési rendszerrel rendelkezik:gázkazánvegyestüzelésű kazánpadlófűtés és radiátoros hőleadáshűtő-fűtő klímaberendezésekAz ingatlan műszaki felszereltsége kiváló:műanyag nyílászárók redőnnyel elletva10 cm-es hőszigetelészsindely tetőfedésriasztó- és kamerarendszerrel ellátott biztonsági rendszerA ház jó állapotú, praktikus elrendezésű, világos terek jellemzik, az évek során folyamatos felújításon esett át.isaszeg a Gödöllői-dombságban található, Budapesthez és Gödöllőhöz egyaránt közel fekvő település, 11800 fő lakosával.A település ingatlanainak értéke stabil, hosszú értékállósága a piaci elemzések tükrében várhatóan stabil marad, illetve nőnek az ingatlan árak.Irodánk ingyenes hiteltanácsadással, CSOK Plusz, Otthon Start Program ügyintézéssel is foglalkozik. Bankfüggetlen hitelközpontunk az összes bank- és hitelintézet ajánlatát versenyezteti ügyfeleink számára. Egyedi kamat- és díjkedvezmények érhetők el így központunk révén, ami a bankfiókokban nem. A teljes hivatali ügyintézés terhét levesszük a válláról, ezzel időt és energiát és pénzt spórolva meg!Hívjon még ma!

További adatok

Telekterület: 550 m2
Kert mérete: 550 m2
Erkély mérete: -
Felszereltség: -
Parkolás: -
Kilátás: utcai
Egyéb extrák:  
-

Hirdető adatai

Hirdető neve: Intor Ingatlan Powered By RH
Kapcsolattartó: Kertész Rebeka
Hirdető telefonszáma: +36 70 467 6820
Honlap: -

Üzenetet küldhet a hirdetőnek:
Az Ön neve:
Az Ön e-mail címe:
Üzenet: